Oversized Three Bedroom in the Heart of Glen Huntly
1/1097 Glen Huntly Road, Glen Huntly
Leased
15/08/2024
$725
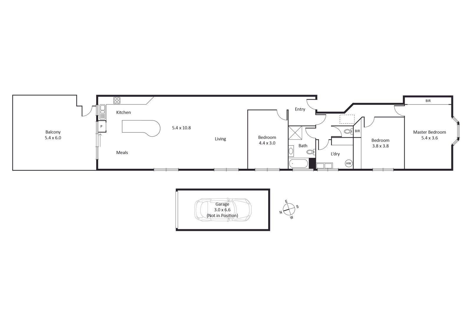
Impeccably maintained, this spacious three bedroom apartment located just meters to Glen Huntly Train station and many fabulous amenities of Glen Huntly’s Bustling shopping strip is sure to impress. Enjoy in comfort a large lounge perfect after a long day and an open plan kitchen offering ample cupboard space, stainless steel appliances and preparation space along with direct access to the balcony. Other features include - central bathroom with separate WC, sizeable laundry ducted heating for those chilly winter days and cooling for the warmer nights plus single car space at the rear to complete the offering.
Agents
Steven Biggins
Partner – Property Management | Glen Eira
LOCATION
Glen Huntly
1/1097 Glen Huntly Road, Glen Huntly, VIC 3163








