Exclusive Townhouse in a Quiet Cul-De-Sac
1/3 Wilks Street, Caulfield North
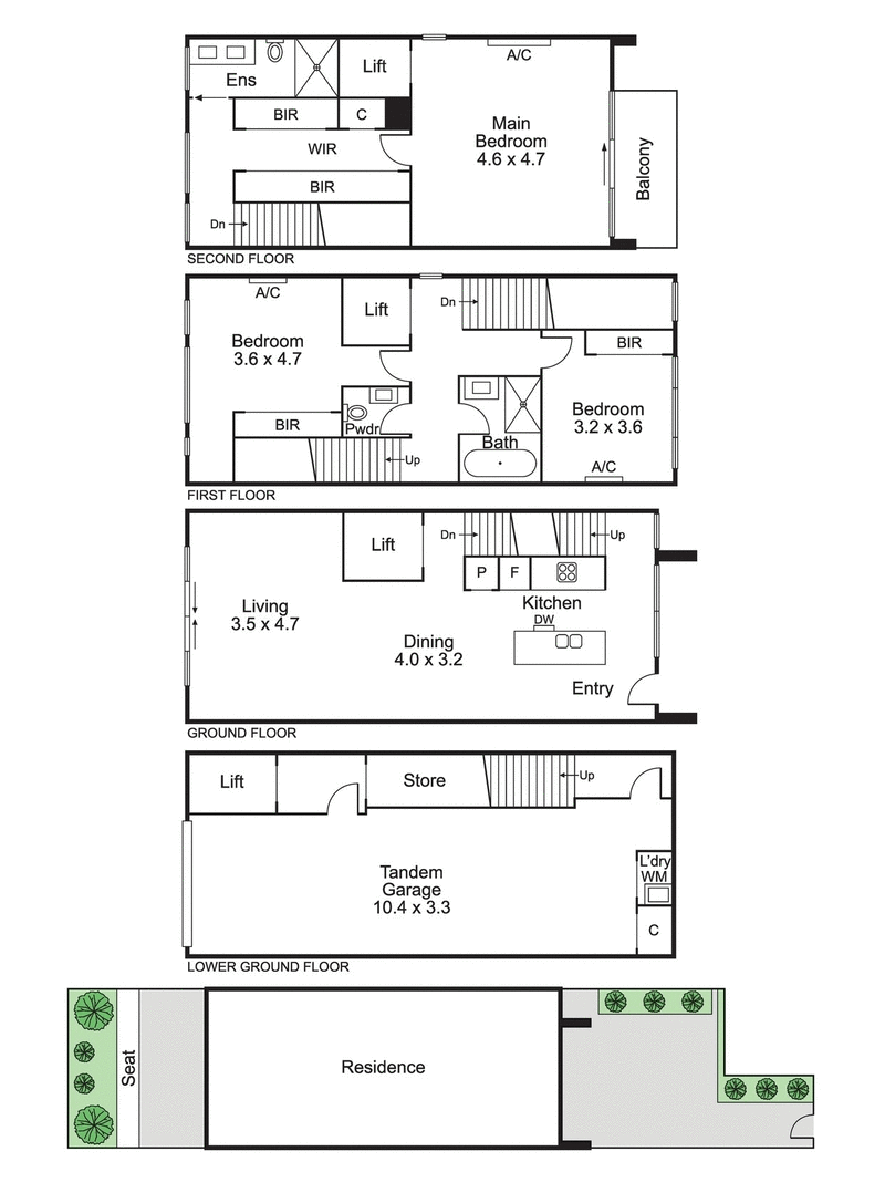
Nestled in an exclusive Caulfield North cul-de-sac, this architect designed multi-level townhouse in the boutique “Cantala” development offers the ultimate blend of contemporary elegance & low maintenance luxury. Spanning four levels, this stylish home with the added advantage of private lift access to each floor, makes it an ideal choice. Beyond the enclosed front courtyard, with the convenience of private street entry, the ground level introduced by floor-to ceiling windows & immaculate timber flooring delivers an open plan living & dining zone. This light filled space is served by a gourmet well-appointed stone kitchen with quality appliances (including integrated dishwasher & fridge/freezer) & enjoys access to a sundrenched rear courtyard with built-in bench seating - the ideal setting for alfresco relaxing & entertaining. Enjoy lift or stair access up to the first level where two good sized bedrooms with built-in robes share a stylishly appointed central bathroom with freestanding bath, shower & separate toilet. The top level, a private main bedroom retreat delivers a luxe fully tiled ensuite, walkway of built-in robes & balcony access. While the lower basement level features a secure, lock up double garage & laundry facilities. Other features include ducted heating/cooling, secure intercom entry & the added advantage of resort style facilities for residents to enjoy including a communal pool & BBQ area with gorgeous garden surrounds. This wonderful lifestyle opportunity is perfectly positioned just a short walk to Alma Village shops & cafes, a choice of transport options, Caulfield Park, well regarded schools as well as vibrant High Street & Glenferrie Road shopping strips.
Please note; courtyards will be updated prior to tenancy commencing.














