Golden Mile Grandeur with Entertaining Finesse
164 Mont Albert Road, Canterbury
INSPECT STRICTLY BY APPOINTMENT.
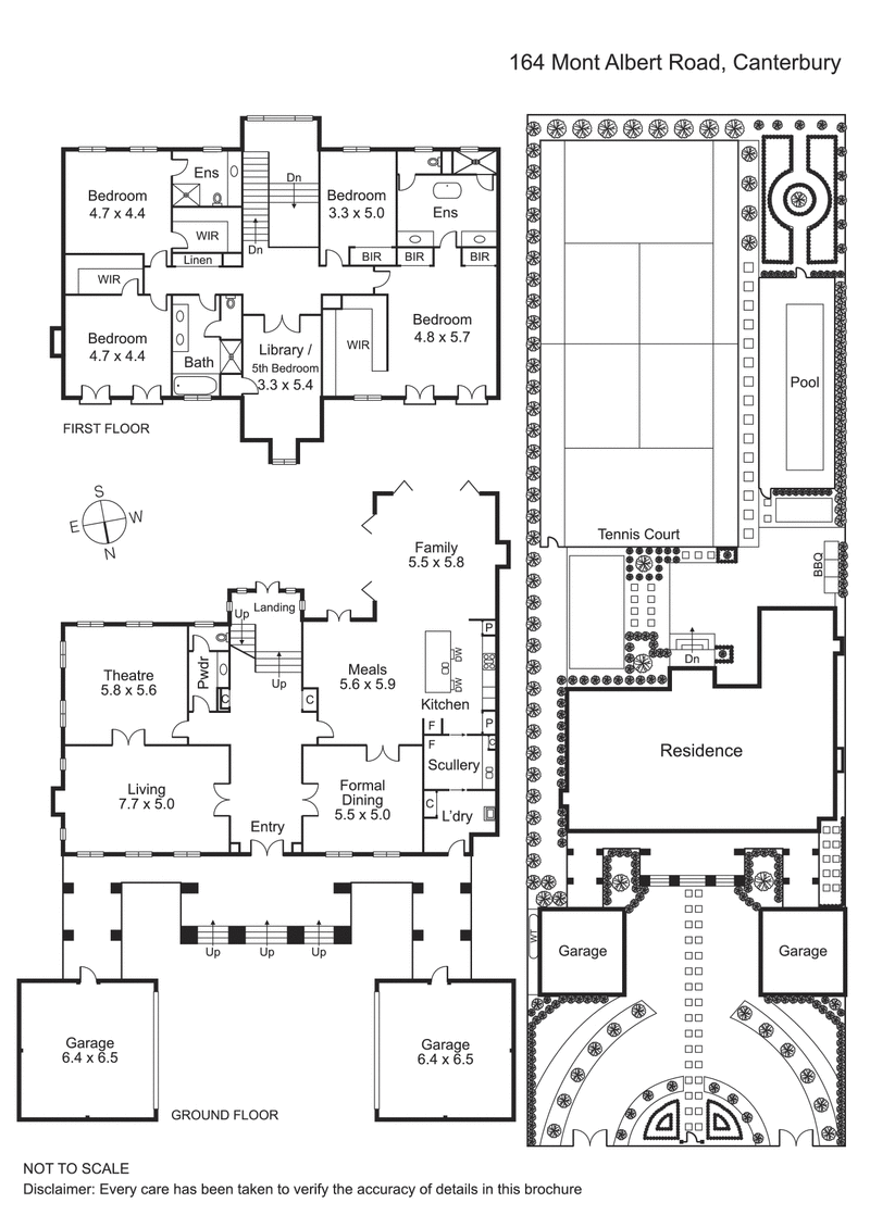
A magnificent elegant presence within the prestigious Golden Mile, this exceptional Catt Architects designed French château-inspired home provides an outstanding caliber of family living and entertaining amidst classically Paul Bangay landscaped gardens featuring floodlit north-south tennis court and stunning salt-water pool. Beyond the absolute privacy and security of auto-gated circular driveway and 2 double remote garages, brilliantly conceived architectural spaces are grandly proportioned, timelessly attired and cater effortlessly to both lavish entertaining and relaxed family living.
Crafted without compromise with elite quality and understated luxury underpinning each impressive room, this breathtaking abode is lavished with imported travertine finishes throughout a substantial floorplan. Extravagant formal living and dining rooms flow to stylish familyroom and expansive open-plan casual areas where a gourmet Miele/ Calacatta marble kitchen (huge butler's pantry) takes pride of place and full bifolds seamlessly link flawless indoor spaces to pool and court-side terraces designed for unforgettable aprEs-sun entertaining (al fresco kitchen). Sumptuous accommodation flaunts 4 deluxe bedrooms (2/ensuite, master/walk in robes/spa-ensuite), executive library/5th bedroom and superb family bathroom whilst every imaginable lifestyle luxury (zoned heating, cooling and security, video intercom, C-Bus wiring, approximately 10,000 ltr water tank to name a few, guarantees this home will leave you breathless.
A home of prestige in a location of prominence, this executive lifestyle domain sits amidst the cream of Melbourne's schools and within easy reach of Maling Road train, 109 tram, bus, Village shopping, cafes, restaurants, Balwyn Theatre and extensive parklands.
Land: 2,010m2 (21,645sq ft) 25.75m x 78.08m (84'6” x 256'2”) approximately.
www.164 montalbertrdcanterbury.com.au/?


















