Inspiring Blend of Period Grandeur and Contemporary Design
60 Tivoli Road, South Yarra
Enjoying an imposing, elevated street presence in one of South Yarra's most coveted locations, this beautiful and substantial double fronted Victorian Italianate residence offers a wonderful balance of period grandeur and contemporary design.
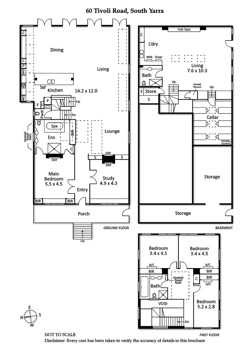
The stunning bluestone and wrought iron entrance reveals a spacious master bedroom with ensuite and elegant study preceding an outstanding three storey extension filled with natural light and evocative angles providing a perfect balance of casual and formal entertaining areas. The well-appointed Miele and Carrara marble kitchen is surrounded by expansive living and entertaining zones opening out to a stunningly private landscaped garden with pool, spa, integrated BBQ, and secure double off street parking.
The lower level provides further living/ entertaining zones, a stunning 4500 litre marine fish tank, laundry, bathroom, and 3000 bottle EuroCave climate controlled wine cellar all bathed in natural light cleverly captured through glass flooring from ground level. A striking architectural staircase leads to the first floor consisting of three further bedrooms, family bathroom, and extensive storage once again enjoying an abundance of natural light from multiple tinted skylights.
Additional features include Sonos music throughout, Clipsal C-Bus Wiser Home Control System, extensive security system, zoned ducted heating and split system air-conditioning, ducted vacuum system throughout, abundant storage including large under house storage, remote controlled external blinds and awning, multi-zone watering system, and award winning landscape lighting.
















