Charming Toorak Residence
12 St Georges Road, Toorak
Sold
12/11/2016
Undisclosed
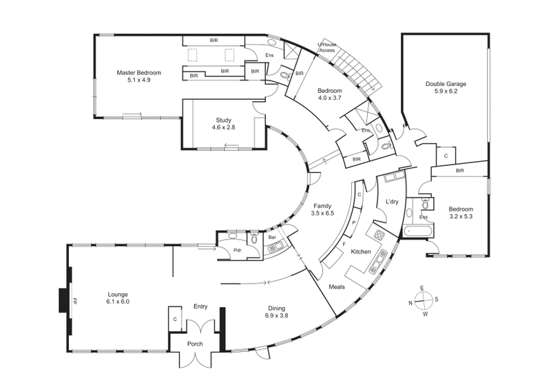
Prized corner location in one of Toorak’s most illustrious locales with two street frontages this unique, architect designed, single level home sits in a charming North/ West facing private garden of approx. 869m².
Thoughtfully designed to provide light filled formal and informal living areas overlooking both the private front garden and centralised courtyard from striking full length windows.
This evocative three bedroom home has remarkable sweeping circular angles offering a flexible floorplan ripe for renovation or an unparalleled opportunity to redevelop (STCA) the substantial parcel of land close to leading private schools and transport.
LOCATION
Toorak
12 St Georges Road, Toorak, VIC 3142













