Simply Stunning
22 Surrey Road, South Yarra
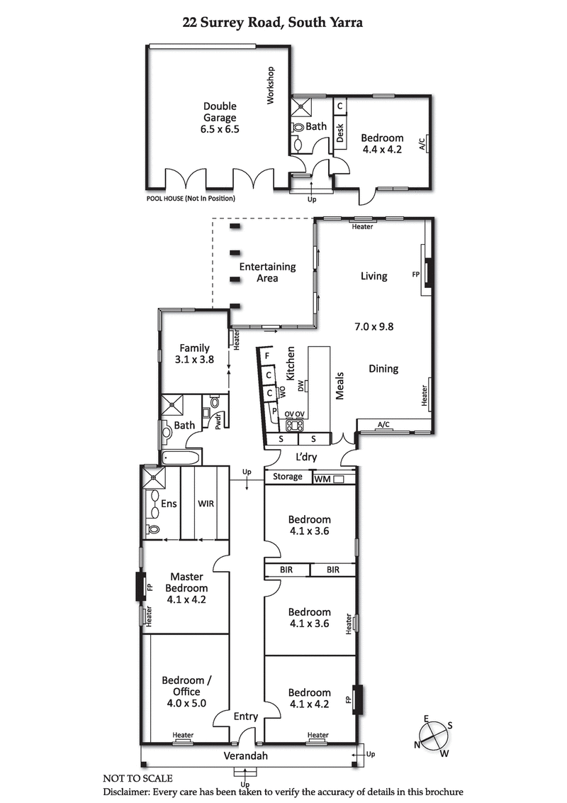
Spacious light filled Architect designed 5 bedroom, double fronted Victorian residence with in-ground pool and fabulous outdoor entertainment area on a generous allotment of 854m2 approx just moments from vibrant Chapel Street and Hawksburn Village shops, cafes and restaurants, public transport, major schools and every convenience.
Boasting 4 large bedrooms (main with WIR and ensuite), formal living/study, kids retreat, main bathroom, powder room, open-plan kitchen with Siemens/Bosch appliances and stone benchtops, oversized living/dining with OFP opening onto a private outdoor entertainment area and self-cleaning solar/gas in ground pool.
Additional features include: hydronic heating, wide Baltic floorboards, refrigerated air conditioning, alarm, irrigation system, water tanks, abundant storage, separate laundry, double remote garage via a ROW, additional parking for 2 cars with automated gates and one bedroom pool house accommodation with ensuite.














