Prized Clifftop home above Shelley Beach! - UNDER OFFER
3682 Point Nepean Road, Portsea
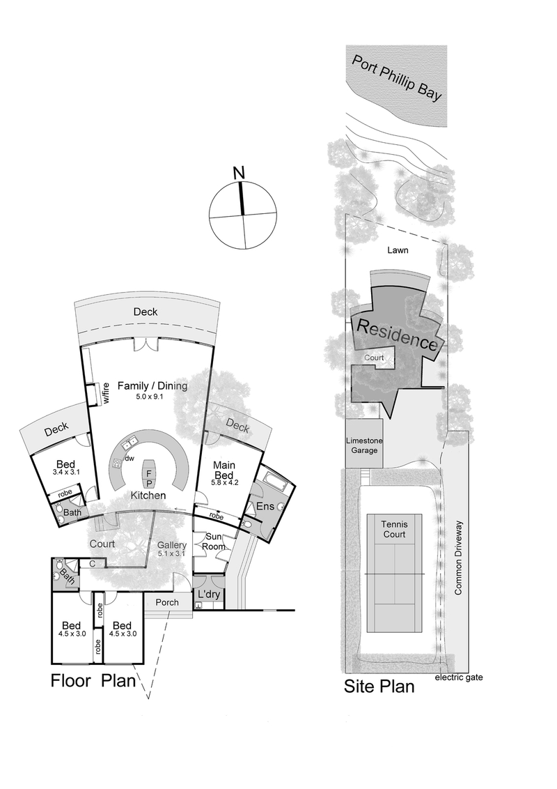
Perched above Shelley Beach this four bedroom architect-designed home with tennis court provides first class luxury and a front row seat to sweeping vistas across Port Philip Bay. Set on a 1621 sqm (approx.) and buffered by tall and sculptured hedges, the layout has been exceptionally designed to accommodate dual or extended families for enviable beachfront escapes with the sandy shoreline as your very own backyard. Back dropped by floor-to-ceiling walls of glass framing the cobalt bay. The central living area has glass doors opening to the north-facing barbeque/entertaining deck and parkland-like yard and bay beyond. The centrepiece circular kitchen includes stone counter, Asko dishwasher, stainless steel oven and concealed microwave, while a separate sitting room and sunroom afford additional zones to relax in absolute comfort. The grand master suite opens directly to a private deck overlooking the bay and includes a full ensuite, while a second master bedrooms beside a bathroom will have guests equally indulged with another private deck behind sliding doors. A most privileged location, the property also includes a third bathroom, open fireplace, ducted heating, security system and a limestone double carport behind an electronic gated entry.











