Toorak's Finest
7 Teringa Place, Toorak
867
Sold
23/07/2018
Undisclosed
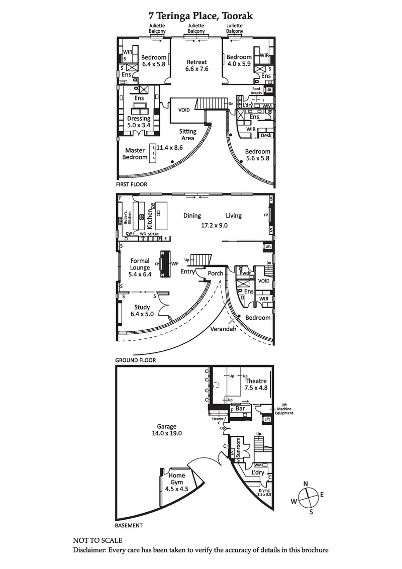
Brand new contemporary light filled north facing family residence set in one of Toorak’s most prestigious courts surrounded by Melbourne’s finest real estate, within walking distance to Toorak Village shops, cafes, restaurants, public transport and top private schools. Land Size 866m2 approx.
Comprising of five bedrooms all with walk in robe and ensuite, large formal lounge, study, open plan kitchen/meals area, informal sitting room opening out to private north facing rear pool and spa, outdoor entertaining area, separate kids retreat, lift access throughout, theatre, gym, seven car basement garaging, heating and cooling, purified and filtered air and water throughout, security system.
LOCATION
Toorak
7 Teringa Place, Toorak, VIC 3142




















