Space and style, moments from Toorak Village
10/3 Washington Street, Toorak
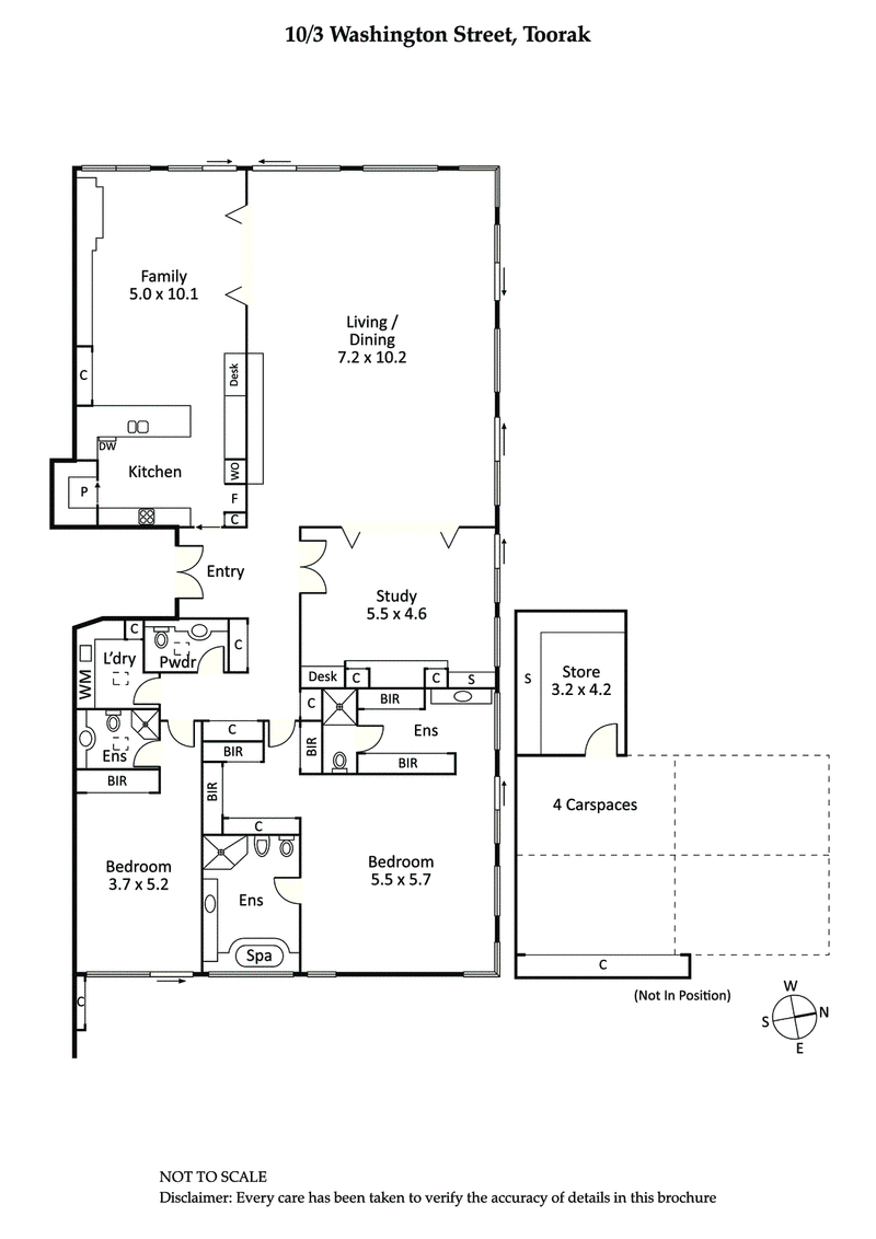
Prized with the penthouse position in this luxury development by renowned architect Gabor Hubay is this impressive two or three bedroom apartment. Encompassed by wide north-facing alfresco terraces, every room partakes in indoor-outdoor enjoyment while imbued with 180-degree horizon views including a stunning CBD backdrop to the west.
The residence features formal and informal living and dining spaces to relax in its tranquil vistas by day or entertain friends against city skyline views by night. A lustrous granite kitchen affords effortless catering with Gaggenau appliances and abundant storage, while engaging family interaction over a stone breakfast bar.
Offering versatile accommodation, the home provides a fully fitted library or alternately an office or bedroom providing wall-to-wall shelving including a desk and bar fridge. Each bedroom is immersed in luxury for private retreat, including his-and hers marble ensuites and built-in robes to the master bedroom, and a private ensuite to the second bedroom.
Complete with a guest powder room, separate laundry, an abundance of storage, ducted heating and cooling, ducted vacuum, electric blinds, monitored alarm, automatic irrigation to terrace, and secure four-car parking plus large storage room via lift access. Positioned moments to the Yarra’s walking trails, and just a leisurely stroll from Toorak Village’s eateries, shopping and transport options.















