Prized Toorak Cul De Sac location
3 Selwyn Court, Toorak
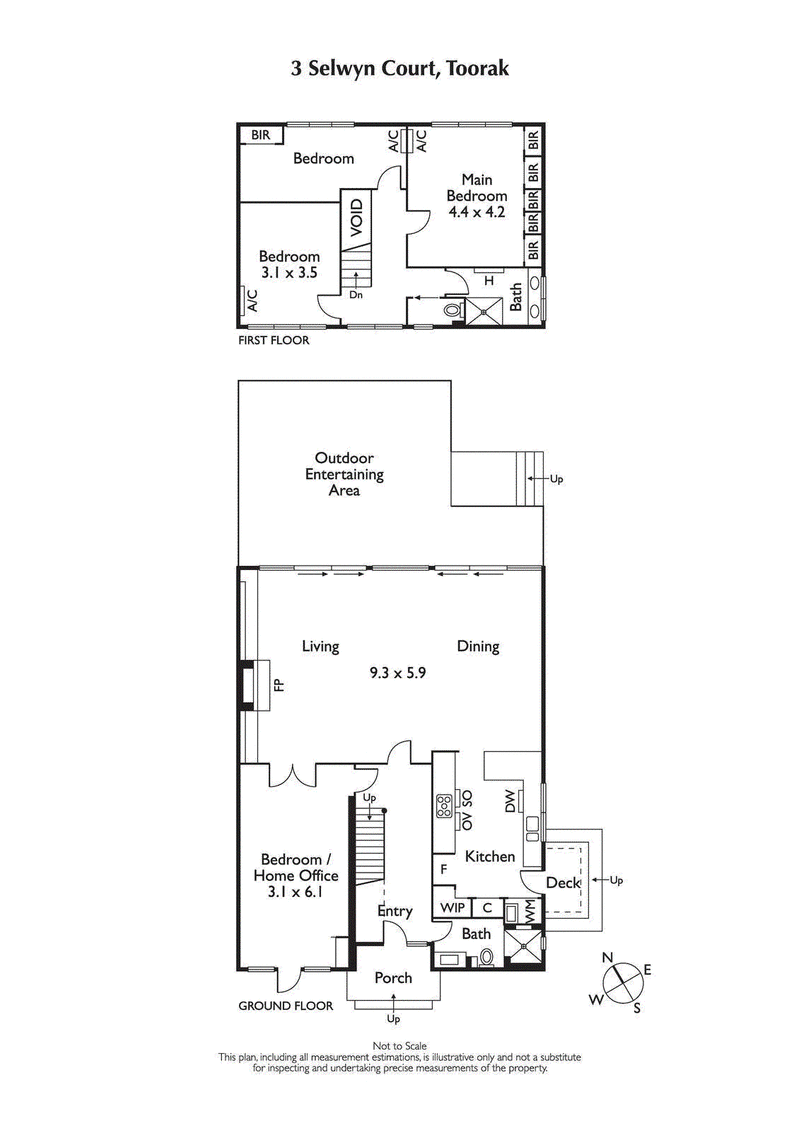
Perfectly positioned at the end of this quiet cul de sac and with stunning private landscaped garden surrounds and a favoured rear northern orientation is this fabulous beautifully built solid brick four bedroom family home.
Immediately comfortable as is but offering scope for further extensions. Land size 525m2 approx. Superbly located between both Toorak and Kooyong Villages with leading schools, shops, cafes and restaurants and easy transport options all close by.
Comprising: Entry hall, downstairs bathroom/guests powder room, fourth bedroom or study, well-appointed light filled kitchen and open plan living/dining spaces which lead to timber decking and gorgeous gardens. Upstairs – 3 further bedrooms and bathroom. Other features include – heating, cooling and double undercover parking.












