Longview, A Large Family Home
21 Warrigal Road, Surrey Hills
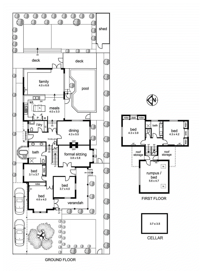
Longview, built in 1896 for a merchant, is a beautiful Victorian house hidden behind a solid bluestone wall. Set on a magnificent garden allotment this 6 or7 bedroom Italianate Victorian residence has been beautifully and sympathetically restored to offer elaborate period detail, lovely big formal and informal living rooms and an overall ambience of grandeur.
A return verandah decorated with original iron lacework and columns leads to the front door, above which the name “Longview” has been etched into ruby & clear glass.
It comprises: grand arched entrance hall, spacious main bedroom with “Victorian” inspired BIRs that close off the room and French doors to verandah, formal sitting room with bay window & marble open fire place, luxuriously appointed central bathroom, large formal dining room with open fire place with stunning white marble mantle overlooking the pool, fully fitted wine cellar, laundry with additional toilet, large well-appointed kitchen complemented with Velux motorised skylights and Falcon freestanding stove, 5 burners, warming plate, convection oven, grill and fan forced oven, sunken family room opening out to sensational mature gardens with computerised sprinkler system and 2 outdoor entertaining zones, storage shed and beautiful solar heated salt water pool. Upstairs are 2 large bedrooms with built in study desks, a modern bathroom and large rumpus/ home office.
With finest quality fixtures & fittings, alarm, ducted vacuum & heating, the residence is conveniently positioned 12 kilometres from the CBD, walking distance to the Surrey Hills Village in Union Road and the Maling Road shopping centre in Canterbury and close proximity to the Camberwell Burke Rd Shopping Centre, including the Fresh Food Market.


















