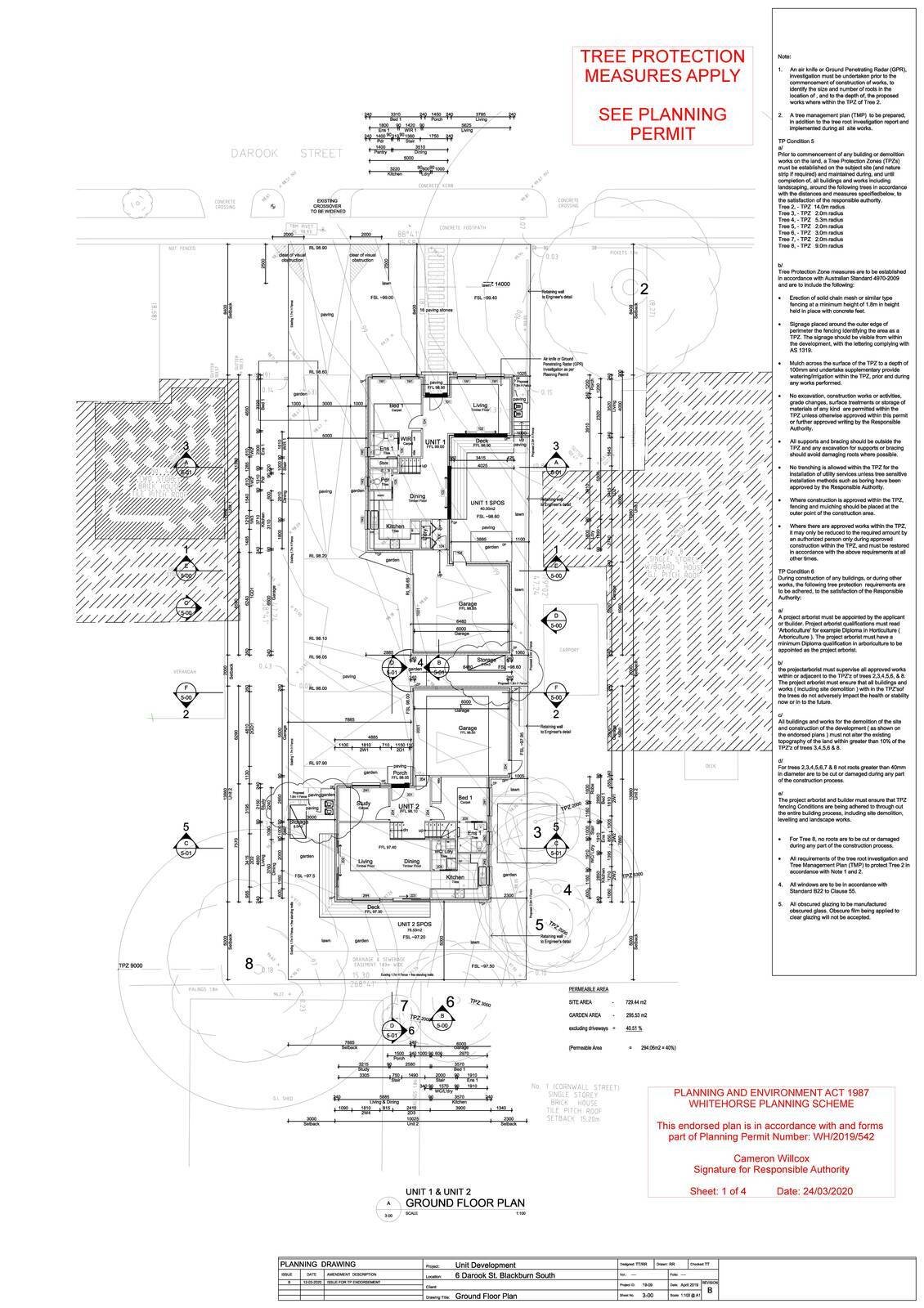
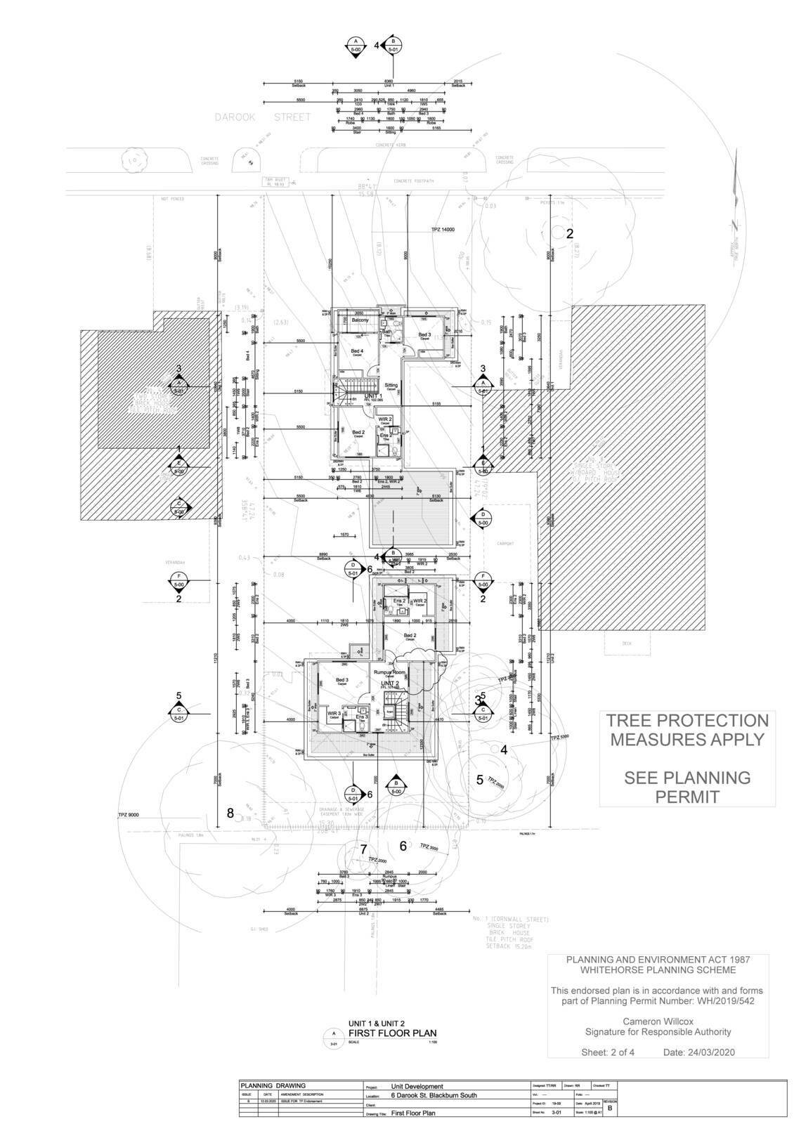
Plans, permit, and promising potential on 729m2 (approx) in an idyllic family locale
6 Darook Street, Blackburn South
A blank canvas of exciting inspiration, this mostly flat 729m2 (approx.) allotment delivers possibilities bound only by your imagination. Providing plans and permit for a dual occupancy development, the site balances a lifestyle of recreation and convenience, just an easy wander to the tasty eateries and daily needs at Forest Hill Chase, and Blackburn Lake’s relaxing parklands, while just minutes to local schools, and the Eastern freeway for a quick commute to the CBD.
Set amid the lush and leafy backstreets of Blackburn, this privileged address is an idyllic family sanctuary, presenting the choice to build your lavish new home dreams, or townhouses of your own design (subject to council approval). The proposed townhouses offer spacious luxury on this vast site, while answering to a demanding market of higher density housing in an ever-growing community.
Each home provides light-filled lounge and dining rooms for family relaxation or vibrant get-togethers, spilling into private gardens for indoor-outdoor enjoyment. Large kitchens cater to family dinners and celebrations with ease, while upstairs retreats offer a private space for kids’ play or study. A choice of upstairs or downstairs master bedrooms nurtures parental privacy or downsizers’ ease, each complemented with luxurious ensuites. Providing a four-bedroom, three-bathroom layout to Unit one, and a three-bedroom, three-bathroom plus study layout to Unit two, the homes are finished with double garages, to deliver a peerless family lifestyle.











