Opulent Living
4/416 Brunswick Road, Brunswick West
Leased
08/08/2024
Undisclosed
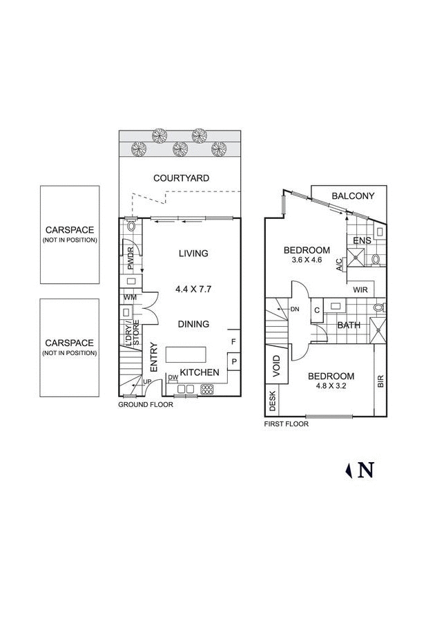
This near-new two-bedroom, two-bathroom townhouse, kitchen with stone-benchtops and stainless-steel Smeg cooking appliances and dishwasher.
The meals/family flows to a paved entertainer's courtyard, robed bedrooms (one with inbuilt desk) Master bedroom includes an ensuite and private balcony.
With hardwood floors, split systems units, downstairs powder room (third toilet), Euro laundry, visual/audio intercom, and secure basement parking . Desirably located moments to CBD trams, Citylink, leafy Royal Park, Union Square shops, and easy Sydney Road access.
Agents
Lily Passarelli
Senior Property Manager | Northside
LOCATION
Brunswick West
4/416 Brunswick Road, Brunswick West, VIC 3055









