Architects Own Home, ‘Conrad Architects’
Hornsby Residence/6A Hornsby Street, Malvern
Please contact the selling agents to book an inspection time, these are to be made prior to viewing the home.
An exemplar of his preeminent approach to architecture and interior design, architect Paul Conrad’s own home testifies to the beauty of his signature minimalist aesthetic resting within a timeless contemporary form. Built by equally renowned Agushi Constructions and with its gardens by celebrated landscape designer Jack Merlo, this three bedroom two bathroom residence boasts a unique design pedigree delivering leading edge luxury by some of Australia’s most acclaimed international creatives.
Set behind a high fenced street frontage, the architect’s commitment to the principles of space, light and proportion are demonstrated throughout an uncompromising design that reflects the refinement and solidity of classical architecture. Minimalist interiors are infused with warmth and light through the careful placement of windows and doors and the use of premium natural materials that in a restrained interior palette, convey a sense of calm and clarity.
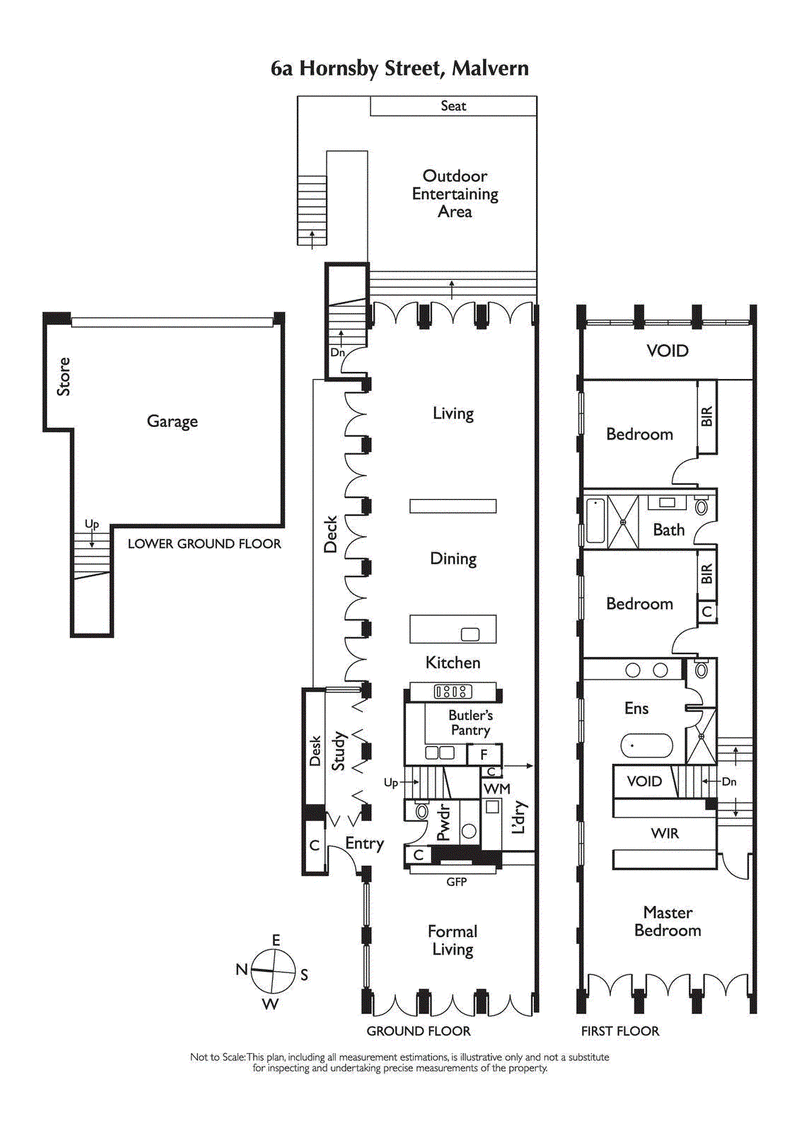
Inspired by the elegance and repetition of a classical colonnade, the dramatic façade hides a beautiful formal sitting room with gas fireplace that enjoys sun filled outlooks and access to the stunning Jack Merlo garden via a trio of elegant French doors. A fitted study/home office precedes magnificent open plan living and dining areas, themselves mirroring the colonnade in their own French doors opening to a north facing courtyard. A spectacular double height void both frames a blue sky view of neighbouring Eucalypts whilst introducing an elevated outdoor entertaining domain lined with landscaped plantings. A sculptural Carrara marble kitchen with butler’s pantry features the excellence of Miele appliances including pyrolytic and steam ovens, warming drawer, Qasair range and Zip tap (sparkling and chilled water). Upstairs, three bedrooms include two with BIRs served by a refined family bathroom, the main peeping through the façade with a fully fitted WIR and soothing ensuite featuring a freestanding egg bath, twin vessel vanity, elite Brodware tapware and heated floor.
Confirming the emphasis on quality craftsmanship, a long carefully considered list of inclusions features Listone Giordano European Oak floors, Carrara marble benchtops throughout, hydronic heating, ducted reverse cycle heating/ air conditioning, motorized blinds, security system with video intercom entry, water tank, 6.7 star energy rating and an internally accessed remote double garage via rear ROW.
Set in a quiet tree lined street surrounded by premium family homes, this exceptional residence is perfectly placed to access Malvern and Armadale shopping and dining, prestigious private schools including Scotch and Bialik Colleges, Malvern Road trams, Tooronga trains and the Monash Freeway.
Conrad Architects - https://www.conradarchitects.com
Agushi - https://agushi.com.au/
Jack Merlo Landscaping - https://jackmerlo.com/
Estliving - https://www.estliving.com/hornsby-residence-conrad-architects/
The Local Project - https://thelocalproject.com.au/articles/hornsby-residence-by-conrad-architects-project-feature-the-local-project/






















