The Ultimate Dream Starter
14 Dolphin Court, Ocean Grove
Tucked away in a peaceful court, this home presents an irresistible opportunity upon approx. 662m2. Whether you’re dreaming of breaking into the property market, searching for the ultimate renovation project, or even have plans to wipe the slate clean for redevelopment (STCA), you’ll need to act swiftly to secure this coastal gem.
Polished floorboards grace the interiors, which invite you to move straight in or update with a personal touch. Renovators will instantly see the appeal in adding an upstairs extension to capture potential ocean views (STCA).
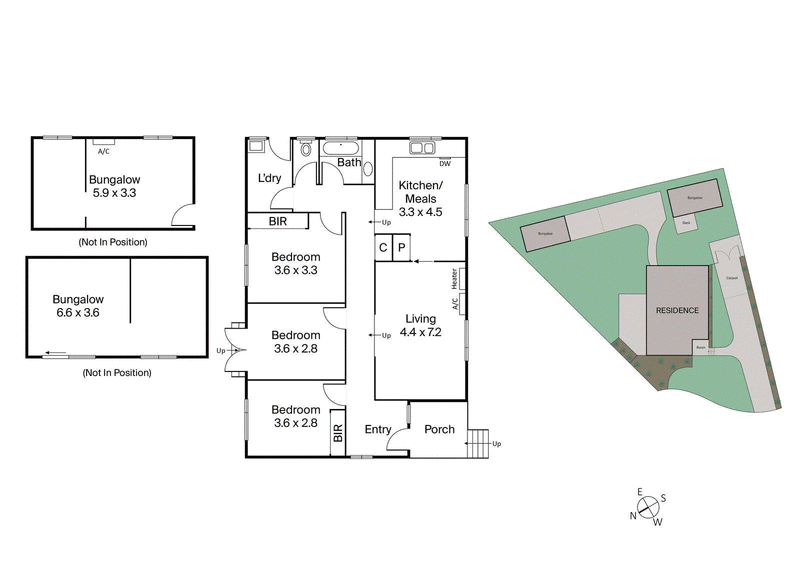
A raked ceiling adds character to the living room, while the kitchen/meals zone features a built-in pantry, dishwasher and stainless steel cooking appliances. Three bedrooms (two with mirrored built-in robes, one with double doors onto the alfresco) share close access to the bathroom. The laundry and separate toilet complete the layout. Other features include solar panels, a gas wall heater, air conditioner and ceiling fans.
Home to a covered alfresco, the spacious backyard is overflowing with infinite potential. The bungalow offers immense versatility as a home studio, teen retreat, or additional bedroom. A second bungalow is waiting to be transformed with a touch of TLC, while the driveway boasts a single carport and backyard vehicle access.
This family-friendly location places you within walking distance to schools, including Bellarine Secondary College. Public transport and local sporting grounds are also a short stroll away, while the surf beach is right at your fingertips. To top it all off, you can enjoy easy access to the Ocean Grove Market Place and delights of the town centre.

















