Deco Delight
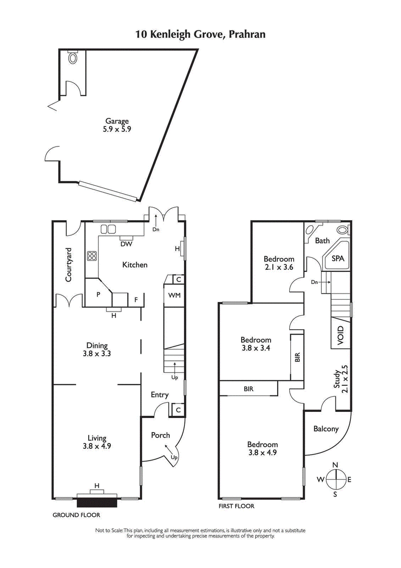
10 Kenleigh Grove, Prahran
This elegant, spacious townhouse is exclusively situated in a picturesque and Art Deco cul-de-sac of only eleven homes. Offering a combination of period grace and modern lifestyle is light filled and charming interior. Features include high decorative ceilings including a hand painted fresco in the dining room, large living room with marble gas open fireplace, superb travertine floors and parquetry floors. A well-appointed kitchen with meals area, garden views and abundant storage extends to a northern entertainers’ courtyard via French doors. The courtyard with an ornate water feature leads to a garage with bifold doors allowing for expansive indoor/outdoor entertaining.
Upstairs are 3 light-filled bedrooms, the main bedroom overlooking the leafy streetscape, while the stylish fully tiled spa bathroom with hand painted ceiling further enhances the accommodation offered. Other features include leadlight detailing, central heating, alarm, Euro laundry, OSP, plus remote garaging.
Conveniently located for a Prahran lifestyle close to High Street cafes and shops, Lumley Park, Chapel Street and the beach with good public transport, this delightful home offers immediate enjoyment, enhanced by the long-term allure of rewarding returns and growth prospects.


















