New York Styled Warehouse Perfect for Residential Conversion
11/663 Victoria Street, Abbotsford
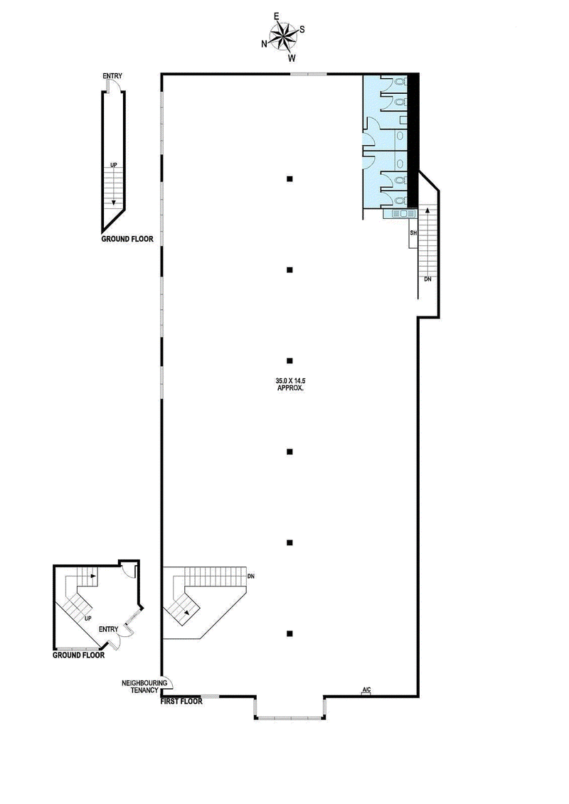
RT Edgar, in conjunction with Stonebridge Property Group, are pleased to present for sale 11/663 Victoria Street, Abbotsford.
This river fronting New York styled blank canvass open plan warehouse of 540sqm approx. offering unlimited scope to create your own residential domain, featuring 7 car parks on title, uninterrupted north facing views onto the Yarra River, exposed brick walls, exposed steel roof beams, exceptionally high ceilings and unrivalled amounts of natural light.
Positioned to enjoy the best of Yarra parklands, with a river front position, it has a riverside bike trail and public transport outside the door, Victoria Gardens across the road and the CBD within 4km, enhancing a significantly rewarding, totally versatile space with the freedom to function as a business enterprise or to enjoy an unforgettable residential address.
















