Period Style With The Perfect Position
9 Seymour Avenue, Armadale
505
Sold
16/02/2022
Undisclosed
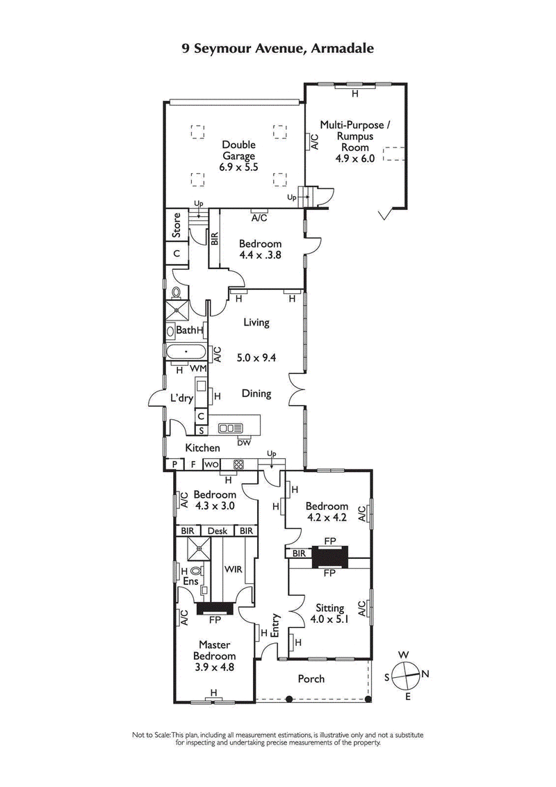
Stunning double fronted light filled Victorian family residence opening to North West facing private garden with a unique blend of style and privacy, only moments to vibrant High Street and Glenferrie Road, shops, cafes, restaurants, schools, parklands and transport. Featuring: Entrance hall, formal lounge, gourmet kitchen, family room opening to North Facing terrace, 5 bedrooms, 2 bathrooms, ducted heating, air-conditioning, polished floors and double garage.
LOCATION
Armadale
9 Seymour Avenue, Armadale, VIC 3143































