Innovative design and on-trend luxury in a prized locale
4/31 The Avenue, St Kilda East
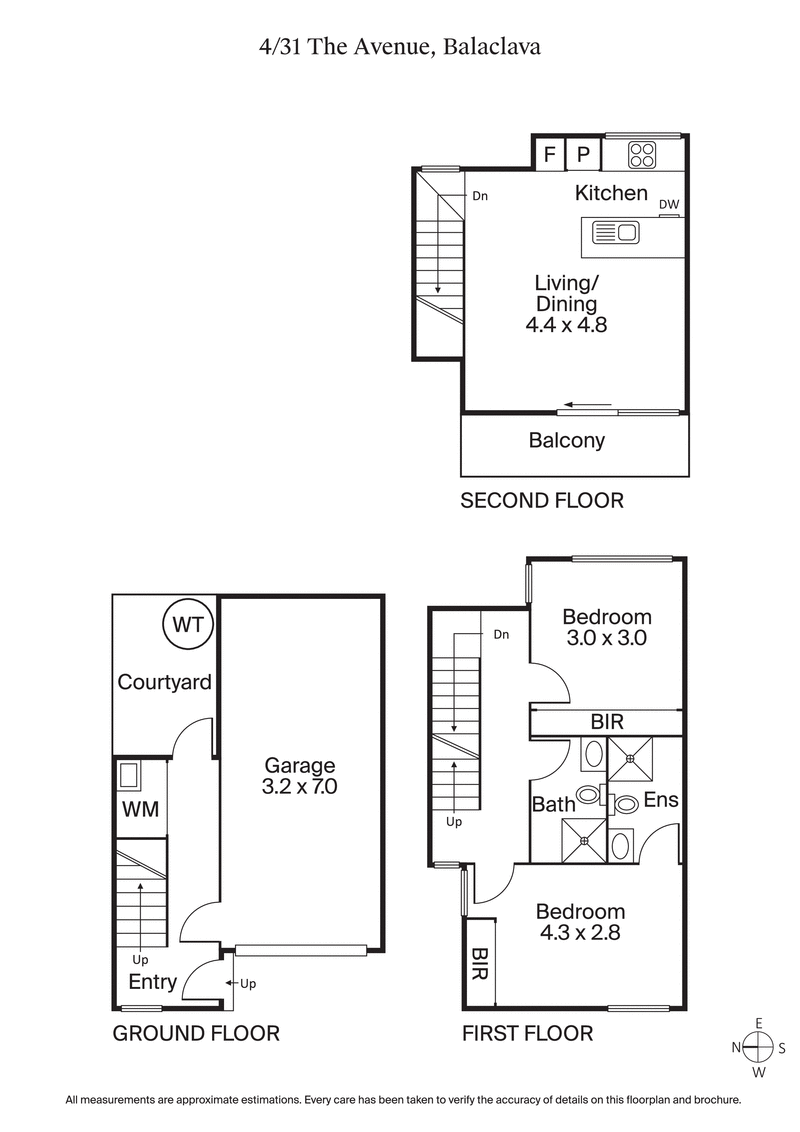
Brilliantly positioned close to Balaclava’s lifestyle and retail district, this suave two-bedroom townhouse immaculately combines minimalist bespoke design and stylish sophistication to deliver a future of unrivalled luxury. Offering plenty of comfort, the home comprises two bedrooms with mirrored built-in robes (master with ensuite) and a central bathroom. Additional features include an individual single garage with fast charge power for electric car charging, bike storage, internal secure visitor entry and handy storage spaces, euro laundry, split-system air conditioners throughout the home. The kitchen features an integrated fridge, Smeg appliances. Double-glazing, roller blinds, fly screens, timber floorboards and video-monitored entry complete the package. Safely surrounded by a world of convenience, live the life you want with public transport, Greenmeadows Gardens and the vibrant atmosphere in Carlisle Street and Ripponlea Village all within walking distance.
















