Deceased Estate
34 Motherwell Street, South Yarra
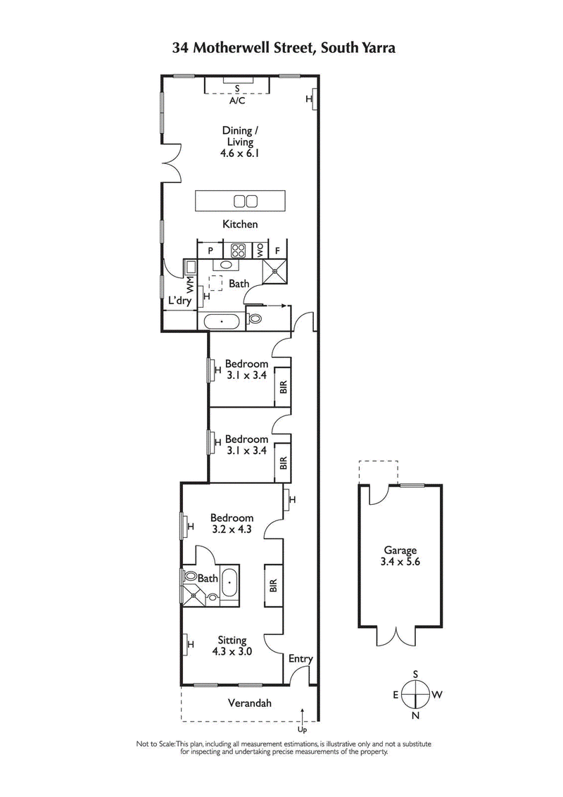
Reimagine this gorgeous free standing early Victorian cottage on an oversized double block of 505sqm approx. with ample space to further extend while retaining many desirable original features including large rooms, high ceilings and benefitting from a huge kitchen living and dining extension opening to stunning gardens. Ideally located within a moments’ walk to the Hawksburn village, chapel street shops and restaurants, public transport and local parks and points of interest.
Enter this stunning, private home tucked behind its inviting façade to the front sitting room and three grand bedrooms all flooded with natural light outlooking to beautiful garden aspects, ample back and side yard space for extension, subdivision or new home site STCA right or way at the rear ideal for off street parking.


















