Single Level Family Entertainer in Sprawling Gardens
51-55 Wattle Grove, Portsea
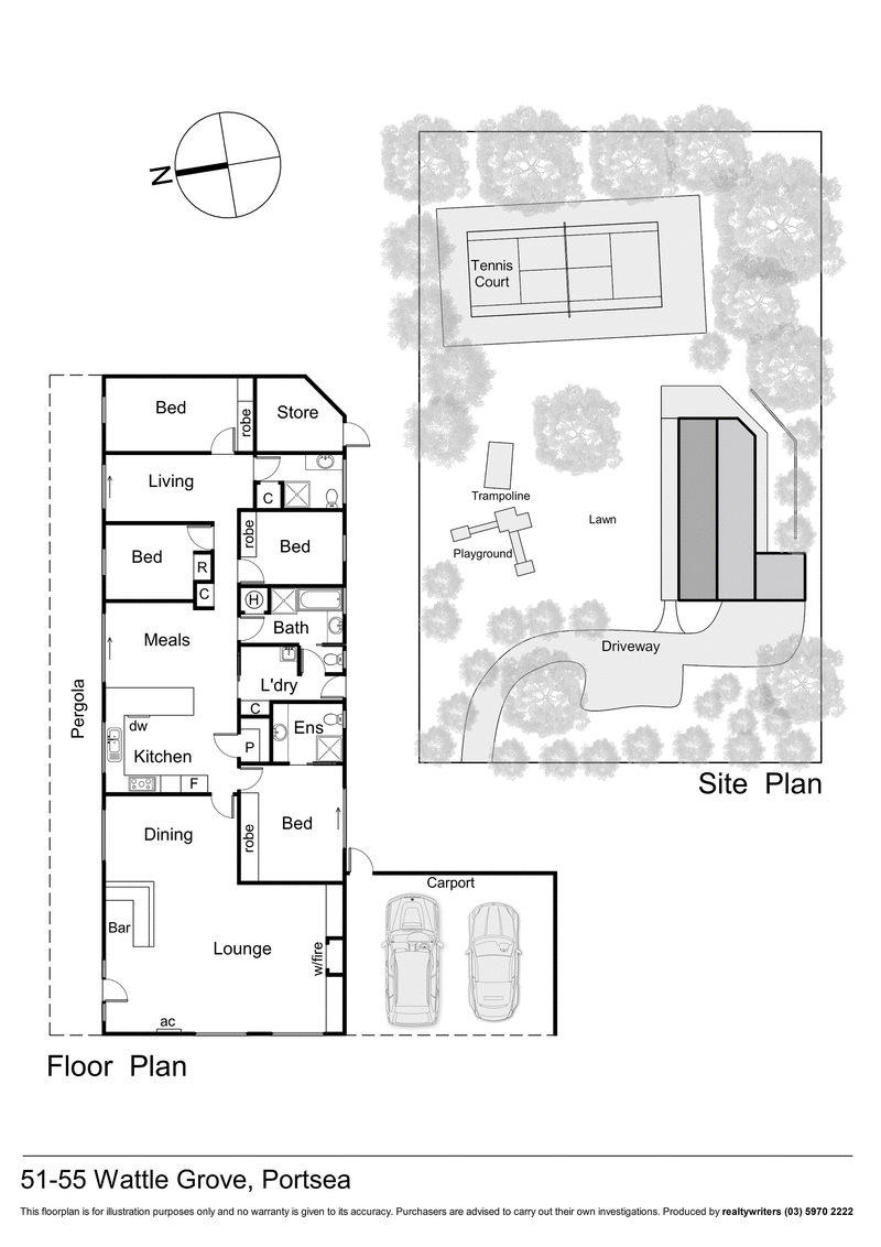
Set amongst sprawling native garden surrounds this light filled single level Merchant Builders brick residence boasts sensational northern aspect, large main rooms, flexible floor plan, north-south tennis court. and trampoline. An outstanding family beachside offering with excellent indoor/outdoor entertainment, scope to renovate, extend, or rebuild (STCA) on an expansive 4,100m2 allotment ideally orientated to capture an abundance of light from north, east, and west. Perfectly positioned within a short stroll of Shelley Beach, Portsea Village and Pub, fashionable cafes and restaurants, Point Nepean National Park and Percy Cerutty Oval.
Welcomed by a sweeping driveway and entrance pergola, featuring large formal lounge with open fireplace and bar, separate dining leading out to northern terrace, rolling lawns, tennis court, playground and trampoline, kitchen/meals informal sitting room. Master bedroom with built in robes and ensuite, three generous bedrooms with built in robes, two family bathrooms, storage room, laundry, undercover parking for two cars and off-street parking for 2-3 further cars.





















