Fully Renovated Single Level Residence
9 Denham Place, Toorak
This elegant and contemporary single level residence sits in an exclusive Toorak boulevard between Albany Road & Hopetoun Road on 613sqm approx. of land set in private landscaped gardens with no heritage, encumbrances or covenants. This fully renovated residence offers low maintenance and exceptional natural light, additionally boasting an opportunity for redevelopment with approved permits and plans for a Christopher Doyle 73 square approx. residence. Located moments to Lauriston Girl’s School, Armadale, Toorak and Hawksburn renowned lifestyle amenity and transport.
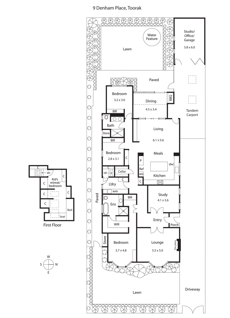
Comprises large entrance, stunning formal and informal living rooms, private home office, fully equipped kitchen, open-plan meals area, dining room with hidden BBQ station, leading to an outdoor area perfect for entertaining family and friends. Accommodation consists of three bedrooms, two bathrooms, wine cellar, laundry, studio, upstairs kids retreat/fourth bedroom and garaging for 3 cars.
There is no heritage or covenants on the property.
To request a copy of the plans and permit, please email mruttner@rtedgar.com.au






















