Elegant Maisonette In Triple AAA Location
2/4 St Georges Court, Toorak
Elegant Marcus Martin Maisonette located in one of Toorak’s finest courts.
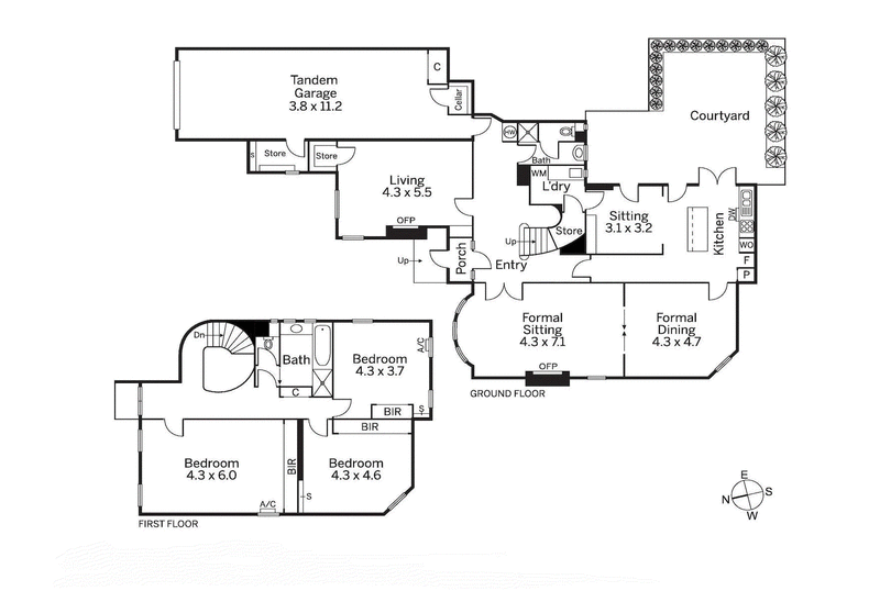
Grand entrance hall opens to sweeping circular staircase, north facing living room with OFP connects to formal dining, stunning sitting room/study or fourth bedroom with OFP and bar overlooking garden.
Renovated kitchen with casual meals area opens via French doors to private leafy courtyard. Upstairs comprises large master bedroom with verdant outlook, two additional bedrooms and large family bathroom. Additional features include double garage with internal access and cellar, downstairs bathroom, ample storage, alarm system, separate laundry, reverse cycle ducted heating and cooling.
This is a rare opportunity to secure a classic and elegant 1930’s home ready to enjoy, with scope to update in one of Toorak’s highly sought-after courts within close proximity to Toorak and Hawksburn Villages, leading private schools, easy M1 access and public transport.













