Executive Family Luxury In Premium Location
46A Lynch Crescent, Brighton
Positioned in one of Brighton’s most prized tree lined pockets, this magnificent four-bedroom executive residence has clearly been designed for families with high expectations and busy modern lifestyles. Introduced by its impressive Spanish inspired façade featuring arched windows, decorative ironwork and barrel tiling roof, its luxurious interiors provide a family environment of the utmost refinement just minutes from Church Street shopping and dining, leading private schools, sought after Brighton Beach Primary and Were Street Village.
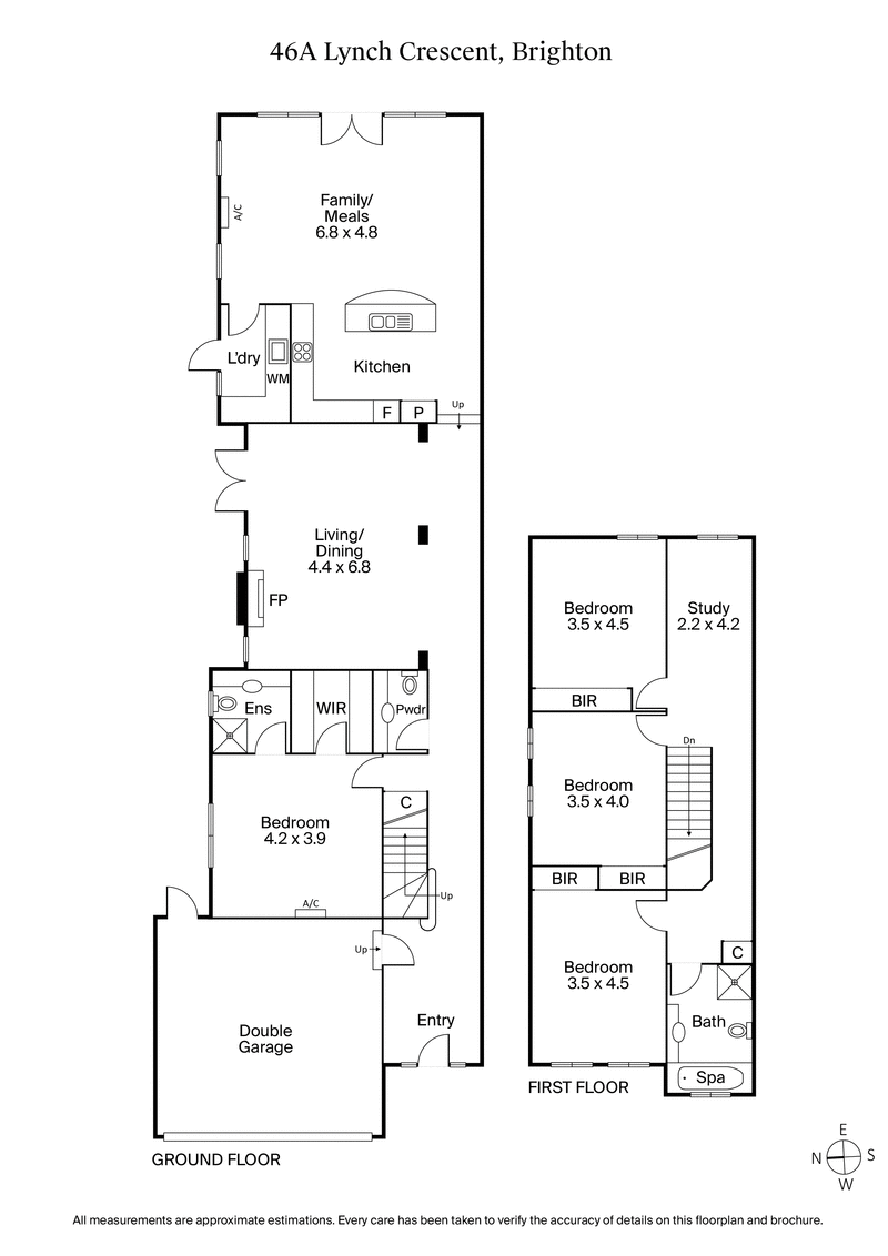
Beyond its elegant foyer entry, high ceilings with classical cornices adorn generous proportions that offer the flexibility of multiple north facing living areas, a downstairs master suite and ideal upstairs kids’ domain complemented by a large granite kitchen, premium marble bathrooms and impeccable presentation throughout. A gracious formal sitting and dining domain with gas fire precedes relaxed open plan family areas that host the large granite kitchen with Bosch appliances unfolding to a lush, landscaped courtyard for idyllic indoor/outdoor entertaining. The ground floor main bedroom with walk in robe and ensuite forms its own lavish retreat whilst upstairs, three oversized bedrooms with built in robes/storage are served by a family bathroom with separate WC and landing study area.
Other highlights include ground floor powder room, laundry, ducted heating/ cooling, ducted vacuum, polished parquetry floors, internally accessed remote double garage and additional off-street parking.
Walk to a fabulous number of family amenities including Brighton Beach and St. Joan of Arc Primary, Dendy Street buses to Brighton and Firbank Grammars, St Leonard’s, Haileybury and Brighton Secondary Colleges, Whyte Street Reserve, Church Street shopping, Middle Brighton trains and Dendy Street Beach. Brighton Secondary College zone.










