Luxury and Lifestyle In Melbourne’s Most Exclusive Postcode
28 Darling Street, East Melbourne
Architecturally designed by highly regarded Jackson Clements Burrows in one of East Melbourne’s most prized pockets, this boutique penthouse residence offers a compelling combination of luxury and lock up and leave convenience. One of two only exquisitely created behind an original heritage façade, its beautifully crafted interiors by internationally acclaimed Hecker Guthrie provide a home of light filled generous proportions directly opposite elegant Darling Square gardens with the CBD, MCG and other high-profile amenities all available within a short stroll.
Originally built as a workshop servicing a nearby 1880’s terrace home, later used as a mechanics garage and more recently, painstakingly redeveloped by local identity Wynne McGrath, its early heritage façade now hides meticulously finished contemporary accommodation against a backdrop of tranquil parkland and City outlooks. Expertly designed for the utmost in private maintenance-free living, carefully considered accommodation features premium designer finishes, its own independent street entry, video intercom security and internally accessed remote garage parking for two cars via a wide rear ROW.
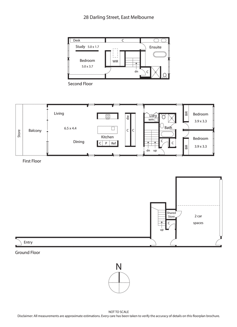
Built to an exacting standard with obvious attention to detail, exceptional accommodation includes impressively generous open plan living and entertaining areas with a double height ceiling and expansive steel framed French doors that unfold to a deep alfresco terrace providing seamless indoor/outdoor entertaining amidst the tranquil parkland and City view backdrop. A stunning lava stone entertainers’ kitchen featuring induction cooktop, central island, extensive storage and hidden bar makes a sophisticated statement accompanied by a fitted home office and three bedrooms that include two in their own zone with bathroom and a magnificent top floor master suite offering walk in robe, extensive storage, second home office or dressing domain and sumptuous double ensuite with freestanding bath.
A long list of considered extras ensures a premium level of comfort including extensive built in storage throughout, Lava Stone throughout straight from Sicliy, hydronic heating, split cooling, Inbani bath and vanity ware supplied by Collective, Artedomus tiling, Woodcut timber flooring, steel gated pedestrian entry, video intercom security and internally accessed remote garage parking for two cars with storage. Note, provision made and permit approved for installation of a private lift.
Enjoy the quiet refinement of Melbourne’s most exclusive postcode, walk to the CBD, awarded City restaurants, high end boutiques and retail delights, iconic Treasury and Fitzroy Gardens, the MCG, Sports, Entertainment, Theatre and Arts Precincts, Yarra River and Royal Botanic Gardens. Easily access trams, trains and major arterial links for a quick commute to the airport or Mornington Peninsula, nearby prestigious private schools including Melbourne Grammar, the hospitals precinct and more.
























