Welcoming, Luxurious Townhouse Living
8/249 Williamsons Road, Templestowe
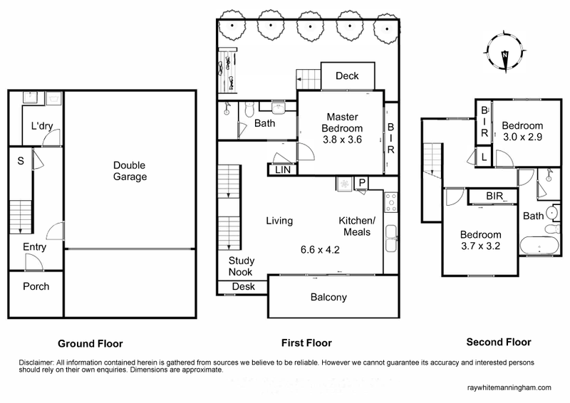
This impressive three-bedroom Templestowe residence offers a welcoming, well curated space built for luxurious family living. From the beautiful front living area that opens out to an undercover balcony entertaining area to the bold colours, texture, and finishes, the style chosen brings the property to life.
Features include, kitchen/meals area, first floor master bedroom with ensuite and direct access onto deck and courtyard, second floor additional two robed bedrooms and family bathroom with bath, split system air conditioning, laundry, private video intercom, timber flooring, ILVE appliances, 'Franke' sinks, Caesarstone benchtops and secure double car garage with visitor's parking onsite available.
A lifestyle of convenience is on offer with the home being a short walk to Templestowe Village and within close proximity to Templestowe Reserve, Westerfolds Park and Ruffey Lake Park. Also, very close to bus transport, and zoned to Templestowe Park Primary School* and Templestowe College*.
*Refer to | https://www.findmyschool.vic.gov.au/
To view the due diligence checklist for home and residential property buyers copy link.
https://www.consumer.vic.gov.au/duediligencechecklist
Photo ID Required at all Inspections.















