Large Family Residence with Self-contained Accommodation Close to Forest Hill Chase
2 Henders Street, Forest Hill
Photo ID Required at all Inspections.
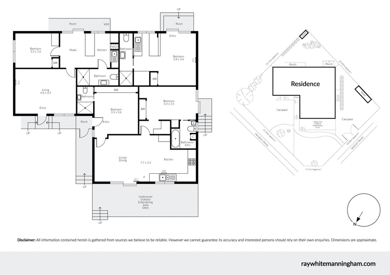
Placed in a peaceful side street and set on a corner black, with driveway access from two streets, this delightful four bedroom, four bathroom residence, is well positioned within close proximity to shops, schools and reserves and within walking distance to Forest Hill Chase Shopping Centre. An attractive, calm decor highlights the expansive home suitable for those with extended family to accommodate. Currently run as a business with three self-contained areas offered on Airbnb, but can be converted to suit a family or work from home options. With separate entrances, the main space houses a charming living/dining area opening to an enticing sheltered deck, adjoining a kitchen well-appointed with quality stainless-steel appliances and a bedroom with ensuite bathroom. All bedrooms are bright and roomy and serviced by pleasant bathrooms and some have a kitchen or kitchenette. Each self contained zone opens onto a timber deck for easy outdoor connection. Features include split-system heating/cooling, ceiling fans, garden sheds. Car space accessed from Henders Street with an additional car space accessed from the side street.
Within close proximity public transport, Blackburn Lake Primary School, Burwood East Primary School, Forest Hill College, Deakin University, Blackburn Lake Sanctuary, Brentwood Square and Burwood One shops and Forest Hill Reserve.
To view the due diligence checklist for home and residential property buyers copy link https://www.consumer.vic.gov.au/duediligencechecklist.











