Impressive Victorian In Super Central Location
129 Wellington Street, St Kilda
410
Sold
04/07/2024
Undisclosed
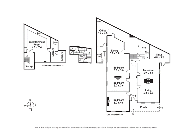
With immense street appeal, this double fronted charming solid Hawthorn brick Victorian sitting on 415m2 of land approximately offers a wonderful lifestyle opportunity perfectly positioned to Chapel Street, BaySide St Kilda, Albert Park Lake, leading schools, and various transport options. Five excellent rooms at the front run off a wide arched entrance hall with a permit for a striking rear extension designed by Architects EAT. This property offers flexibility of space and opportunity with its mixed-use zoning to create an unparalleled residential family domain with multiple off-street car parks, heating and cooling. Current use of property is for a short-term tenancy offering income.
LOCATION
St Kilda
129 Wellington Street, St Kilda, VIC 3182













