Expressions of Interest
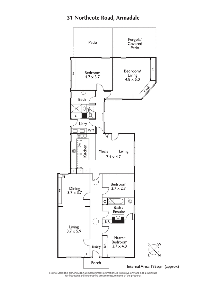
31 Northcote Road, Armadale
Much Loved Family Victorian Home
This much-loved single-level Victorian home on approximately 531 sqm is being offered for sale for the first time in forty years. Maximising its north-west orientation, it has family living in mind with the option to further upgrade. Its beauty and proportions are showcased to perfection throughout the impeccable original rooms with formal and informal living / dining rooms, while light-filled spaces create unforgettable living and entertaining options with their connection to the side and rear mature gardens. There are four generous-sized bedrooms, the main with an ensuite, while the central bathroom serves the other bedrooms. There is off-street parking for two cars. Opportunity abounds to perform a full-scale renovation, working with the existing footprint, to return the home to its former glory with all modern conveniences (STCA). With every imaginable family requirement in close proximity – surrounded by education options with a range of private and public schools, including Armadale Primary, with easy access to High Street, Glenferrie Road and Malvern Central, cafes, bars, restaurants, shops and Armadale and Toorak train stations and trams, all a short stroll away. This is a fantastic lifestyle opportunity not to be missed.



















