Beachside Development Opportunity or Art Deco Project
55 Orton Street, Ocean Grove
A Note from the Agent-
" Set on a massive 927m² with a prized north-facing backyard and coveted RGZ3 zoning, this property is bursting with potential. Just footsteps from Ocean Grove’s main beach and vibrant town centre, you’ll be hard pressed to find a stronger development prospect in such a blue-chip location. For developers, it’s an open canvas with scale and zoning on your side, while renovators and holiday buyers will see the rare chance to secure a character-filled Art Deco home with outstanding upside. Opportunities of this scale are rarely offered—get in now before the summer crowd arrives. " BG
An abundance of character and a remarkable 927sqm (approx.) parcel of land invites the astute buyer to this original Art Deco home in a prized location, just 300m to the golden sands and pristine waters of the Ocean Grove Main Beach.
A unique property offering brilliant potential for families and new home builders, there’s immense scope to bring your vision for a new luxury residence to life while maximising the RGZ3 zoning to capture sweeping ocean views from future second and third storeys.
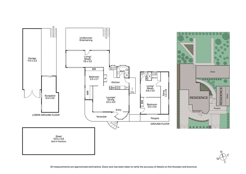
Developers will recognise the outstanding scope to take advantage of an expansive 21.9m (approx.) street frontage with the construction of a premium multi-dwelling development, while there is also an outstanding opportunity to renovate and refurbish the existing architectural home in keeping with today’s contemporary lifestyle (all STCA).
Currently in need of some TLC to bring it back to its former glory, the current home offers exceptional project potential as a character-filled façade introduces original Art Deco features including soaring ceilings, decorative cornices, and a definitive curved window.
There’s a choice of living zones to enjoy as well as a generous north-facing alfresco deck where you can soak up the sunshine and salty sea air. Meanwhile a detached semi-self-contained bungalow provides ideal overflow living or guest accommodation.
Further enhancing this potential-packed opportunity is the site’s easy access to patrolled surf beaches, as well as its proximity to the vibrant restaurants and cafes, boutique shopping, and practical amenities of the town centre, all just a short walk from your door.
Whether your intentions are to retain and renovate the existing home, build your dream abode, or develop the expansive site, this seaside gem presents a golden opportunity to revel in the bliss of the fabulous Bellarine Peninsula lifestyle.









