Substantial Family living on The Ridge
55 The Ridge, Mount Eliza
Ready to move in and enjoy, this extensive family residence (approx 40sq) blends modern sophistication with a lush green environment. Perfect for growing families seeking privacy and space, this impressive home offers an elevated lifestyle in a highly sought-after location.
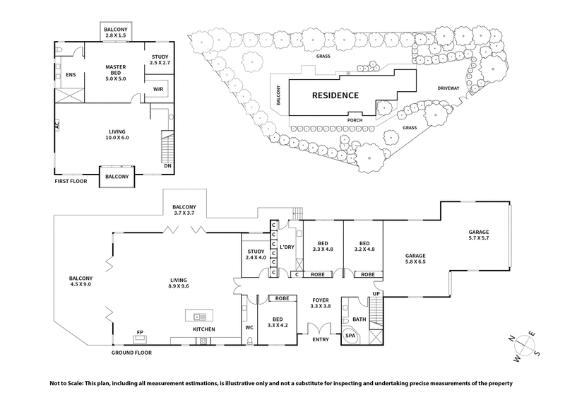
The light-filled interior seamlessly connects to outdoor alfresco areas, perfect for entertaining. The ground floor features an inviting entrance foyer, wide hallway, three large bedrooms, a separate office, and a modern central bathroom. The huge open-plan kitchen overlooks an informal living and dining area that opens out through bifold doors to the entertaining terrace and undercover outdoor lounge with peaceful garden surrounds.
Upstairs, you'll find a second living area ideal for quiet relaxation or entertaining, a luxurious main bedroom with a walk-in wardrobe, a study, and a generous ensuite.
Further features include heating and cooling throughout, a large remote garage for four cars, rich timber floors, quality carpets, and much more.
Located in one of Mt. Eliza's most sought-after streets, this home is close to Peninsula Grammar, Mt. Eliza Primary, and St. Thomas More at either end, opposite The Ridge Reserve, a walk to Mt. Eliza Village, Canadian Bay Beach, and a short stroll to The Corner Pantry.



















