The Windsor Post Office c.1908 – A Unique Residence With Home Business Possibilities
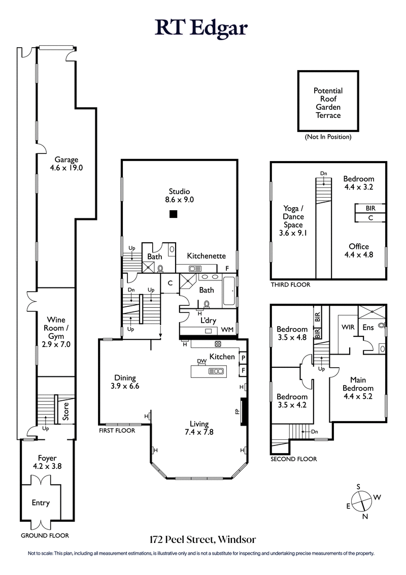
172 Peel Street, Windsor
Genuine Offers Invited
Converted from a commanding building to just three exclusive residences, the former Windsor Post and Telegraph Office must surely offer one of Melbourne’s most unique inner City living experiences. The flagship residence and much loved family home of the project’s visionary and lead designer, this extraordinary four bedroom family residence not only provides a one-of-a-kind home in a renowned lifestyle location, its zoning and dual frontage to Albert Street create the opportunity for a home-based business just footsteps from the vibrant Chapel Street precinct.
Entirely independent with its own private entry, accommodation includes jaw dropping living, dining and entertaining areas that, with a timeless stone finished kitchen and gas fireplace, feature lofty 5m ceilings, original Jarrah floors and wall to wall leadlight windows whose soaring expanses capture northern sunshine and tree top views to the CBD, three bedrooms including two with built-in robes/storage served by a family bathroom, the larger main with walk-in robe and ensuite. A giant mezzanine level provides flexibility as possible fourth and fifth bedrooms, study, gym or yoga studio. A further separately zoned studio/office with bathroom and kitchenette provide a myriad of other options for this space. Other features include secure intercom entry to formal entry foyer, large ground floor storeroom, hydronic heating, richly evocative original detailing, secure second pedestrian access, remote tandem garage for three large cars via Albert Street and excellent scope to create a rooftop entertainer’s garden (STCA).
Walk to the famous Chapel Street precinct, trains, multiple tram lines, St Michael’s and Wesley Grammars with easy access to other elite private schools, the St Kilda Road business precinct, Albert Park Lake, the beach, major arterial links and the CBD.




























