Enchanting Edwardian with Poolside Entertaining
129 Normanby Road, Caulfield North
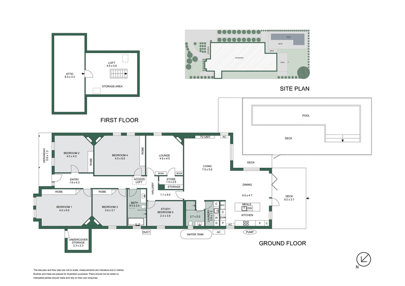
A magnificent double fronted tuckpointed brick Edwardian, 'Laxey' uncovers an inspiration mix of period grandeur and designer class as a majestic 5 bedroom, 2 bathroom family home. On a significant 815 sqm approx. allotment, this unrivalled beauty is grand with its 3.6m approx. ceilings that stretch right through into the extension. A stately residence offering families a wealth of floorplan flexibility to tailor to your personal desires, this impeccably maintained century-old classic features a proud entry hall with timber fretwork, 4 glorious bedrooms with robes, a versatile 5th bedroom/study and a gorgeous lounge/library with walk in storage. The seamless extension on Spotted Gum floors showcases a superb open plan living and dining area and a sumptuous porcelain kitchen with shaker style cabinetry and cutting-edge Miele appliances (2 premium ovens & induction cooktop with extractor), while bi-fold doors open to a raised deck overlooking the sublime fully-tiled salt pool and manicured lawn in the park-like rear garden. The 2 luxurious bathrooms and fitted laundry match the designer aesthetic, highlighted by a Victoria + Albert freestanding bath in the main bathroom, made from finely ground Volcanic Limestone mixed with resin. Resplendent with its ceiling roses, working fireplaces, ornate cornices, leadlight windows and Baltic pine floorboards, this Edwardian treasure is complemented with ducted heating, reverse cycle air conditioning, an alarm system, incredible attic-storage, solar panels, a water tank and secure parking behind an auto gate. A heartbeat to the amazing Caulfield Park, walk to both Hawthorn Road and Glenferrie Road shopping and dining precincts, Monash University, Caulfield Village shopping centre, Malvern Central, Malvern station, multiple tram routes, Malvern Primary School and Caulfield Racecourse.


















