Charming Edwardian
18 Alleyne Avenue, Armadale
Step into this charming, freestanding double brick post-Edwardian family home, which has been thoughtfully renovated, sympathetically showcasing the elegant period features throughout.
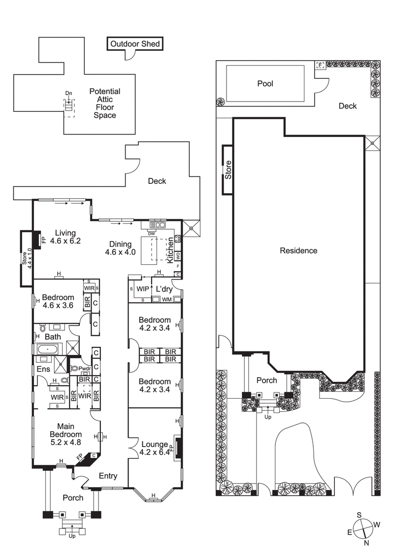
Off the welcoming expansive entry and wide central hallway is a designated formal lounge or home office, flooded in natural light through the beautiful bay window and complete with cosy stucco open fireplace. Adjacent is the generous master suite with his and hers walk in robes and stone ensuite. A further three accommodating spacious bedrooms, each with built in robes and hydronic heating for ultimate comfort.
Light and bright open plan family living and dining is abundant at the rear, accentuated with gas fireplace and soaring ceilings anchored by a sparkling central chandelier, adding a touch of sophistication. A large modern kitchen with new cabinetry, island bench, double sink and Miele appliances is complimented by a convenient walk-in pantry for efficient storage and organisation. Huge sliding glass doors let the outside in, creating the perfect balance of indoor/outdoor living, whilst taking in the visual delight of the manicured greenery against the crisp white interior. Low maintenance decking surrounds the solar-heated pool for year-round relaxation and entertainment, as well as the added luxury of a refreshing outdoor shower, perfect for cooling off on warm days.
Complete with Hydronic heating ensuring cosy warmth during the colder months and refrigerated ducted cooling to ensure consistent and refreshing air flow throughout during the warmer seasons. Recently installed LED lights illuminating every corner with energy-efficient brilliance, brand new upmarket blinds providing privacy and style to every room, enhanced security with a monitored alarm system and CCTV surveillance, secure off street parking for two cars and a large attic offering additional storage or potential for expansion. All set within proximity to the vibrant shopping precincts of High Street and Glenferrie Road, offering a plethora of boutiques, cafes, restaurants, bars and public transport.
This classic family home offers space and updated comfort whilst respectfully retaining originality, exuding all the charm, character and warmth of yesteryear.










