Iconic 1970’s Family Home, Land 648sqm, No heritage overlay
38 Vincent Street, Glen Iris
648
Sold
23/11/2024
Undisclosed
Situated in this fabulous wide tree lined street offering massive potential and perfectly positioned to leading schools, parks, shops and transport is this single-story brick family home. Flooded with natural light and offering exciting renovation opportunities or as a new home site (STCA).
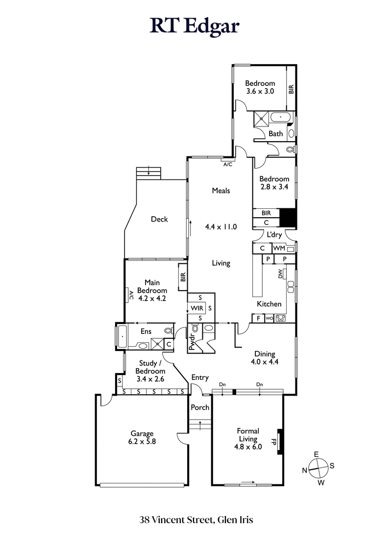
A versatile family friendly floorplan, including a sunken lounge room offers separately zoned and spacious living areas with the kitchen family room opening to north facing decking and garden views. Further complimented by up to four-bedroom accommodation, master with ensuite, central bathroom, guests’ W/C separate laundry and a double garage.
A fabulous future awaits the discerning purchaser.
LOCATION
Glen Iris
38 Vincent Street, Glen Iris, VIC 3146













