Period Gem in the Heart of Abbotsford
21 William Street, Abbotsford
198
Sold
12/12/2024
Undisclosed
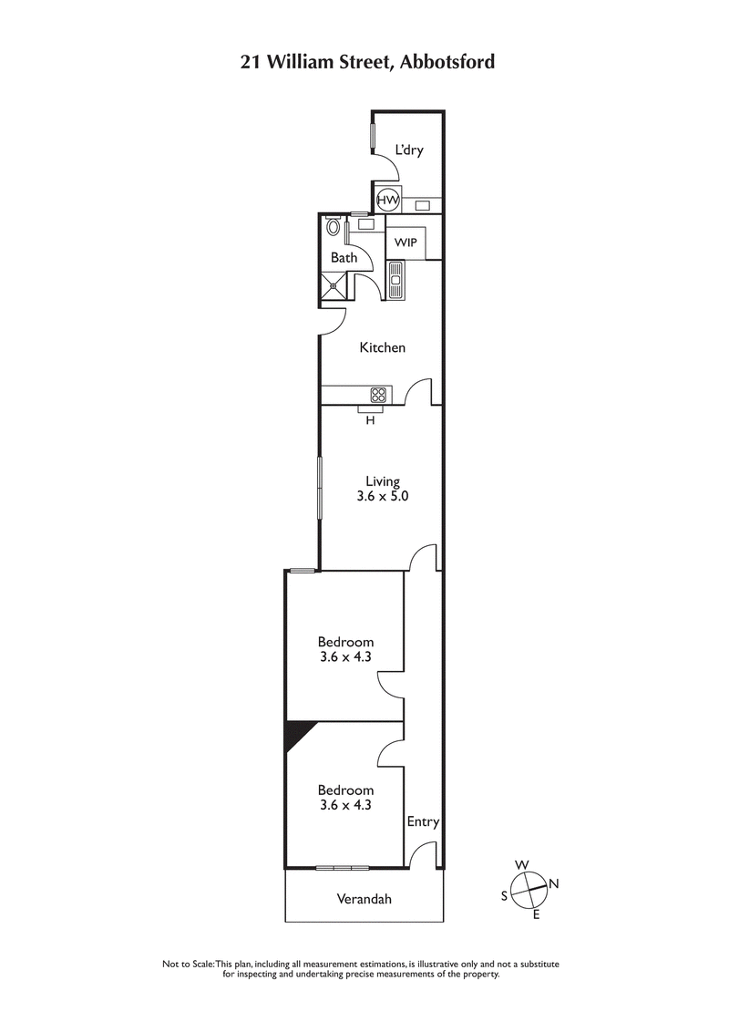
Charming, private and secure single level Edwardian residence, held in the one family’s ownership for 50 years offering excellent natural light, high ceilings, large main rooms and further scope for renovation. Ideally positioned within short walk to Victoria and Johnston Streets shops and restaurants, Yarra River Walk, Yarra Bend Park and transport.
Comprising entrance hall, two generous bedrooms, formal lounge, kitchen/meals leading to private west facing rear garden, bathroom, laundry, and off-street parking for one car with rear lane access.
LOCATION
Abbotsford
21 William Street, Abbotsford, VIC 3067














