Period Charm, Position And Potential
3 St Georges Road, Preston
Expressions Of Interest
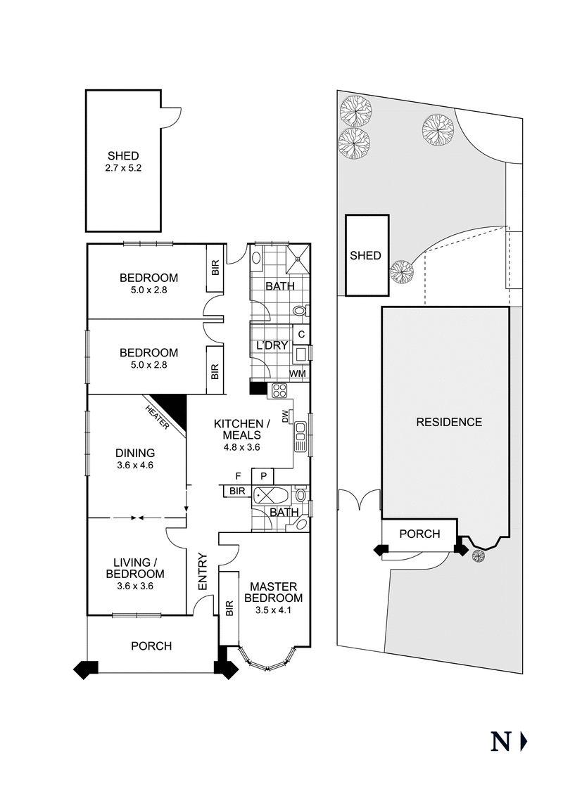
This distinguished Californian Bungalow, set on a substantial 458m² (approx.) in a prestigious Preston address, offers a captivating blend of timeless period charm and modern comforts. With its appealing layout featuring three spacious bedrooms and two bathrooms, this brick home is a sought-after prospect for owner-occupiers, investors, and developers alike (STCA). A welcoming entry hall introduces you to an elegant dining area adorned with leadlight windows, flowing seamlessly into a refined lounge with decorative ceiling panels and sleek timber flooring. At the heart of the home, a beautifully refurbished kitchen and meals area showcases quality upgrades, including a stainless steel dishwasher and updated appliances, catering to both everyday and entertaining needs. Each of the three generous bedrooms offers built-in robes, with the master bedroom further enhanced by a stunning bay window that fills the space with natural light. The home is equipped with neat bathrooms, a gas heater, and air conditioning throughout, providing year-round comfort. Additional features include security shutters, a covered outdoor entertaining area leading to a sunny backyard, a garden shed, and off-street parking. Perfectly positioned just moments from trams, trains, Miller Street shopping, Preston Market, popular cafés, and quality schools, this property offers a rare opportunity in a highly coveted locale.










