The Ultimate Choice for Families and Entertainers
11 Cerberus Drive, Ocean Grove
Seamlessly blending family-focused proportions with a desirable north-to-rear aspect, this substantial four-bedroom plus study home unveils an ultimate entertainer’s haven, effortlessly maximising its privileged 682sqm (approx.) allotment.
Situated within the family-friendly Oakdene Estate, moments to renowned surf beaches and the everyday amenities of Kingston Village, this contemporary abode is perfectly situated to deliver a lifestyle centred around fabulous indoor-outdoor entertaining and relaxed day-to-day living.
Introduced by landscaped gardens featuring a tapestry of hardy coastal plantings, the modern single level abode welcomes with high ceilings and radiant northern light providing an uplifting sense of space that continues through to the open plan living domain at the rear.
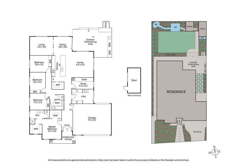
The kitchen with stone benchtops, walk-in pantry, and full suite of stainless-steel appliances makes mealtimes a breeze, while the real treat is the covered alfresco patio featuring an outdoor kitchen with built-in barbecue and parrilla, plus a pizza oven – perfect for hosting family soirees as children play freely on the expansive, sun-drenched rear lawn.
Four generously sized bedrooms including the privately zoned main with ensuite and twin walk-in robes, a central family bathroom, and separate rumpus room deliver all the comfortable appointments expected from a home of this calibre, while a study with fitted double workstation easily caters to students or those working from home.
Amid verdant surrounds that welcome local bird and frog life, you’ll relish in the home grown produce on offer from your raised garden beds, delight in the built-in fish pond with trickling water feature,
and rinse off the sand and salt under your outdoor shower, while children can enjoy the abundance of space and an elevated cubby house.
Promising a privileged beachside lifestyle, this impressive home is comprehensively appointed with double glazed windows, ducted heating, evaporative cooling, ample off-street parking via an oversized double garage with rear access for a trailer, plus three-phase power that’s perfect for tradespeople or the home handyman.
























