Family Excellence with Endless Space
5 Westbury Court, Ocean Grove
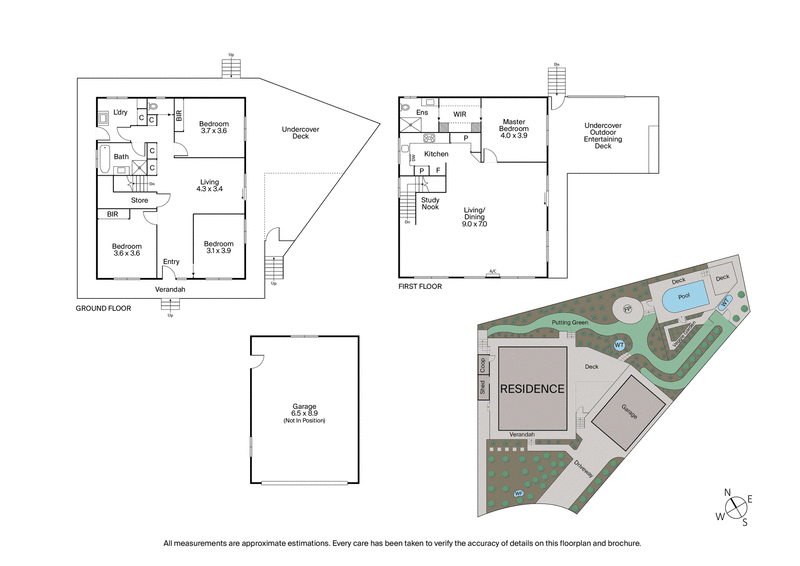
Tucked away at the top of an exclusive cul de sac and set across an elevated 879sqm (approx.) block, this thoughtfully updated dual storey residence flawlessly balances family requirements and lifestyle excellence, with modern demands of low maintenance ease.
A ready-made entertainer in a sizeable pool and garden setting, its flexible, family-focused design unveils behind a commanding sandstone façade, offering a harmony of zoned and integrated areas to bring everyone together, yet provide distinct spaces for work, rest, and play.
An upper-level open-plan living domain acts as the heart of the home, where oversized proportions lure the eyes outwards to a picturesque coastal aspect including views to the Point Lonsdale lighthouse. Here, contemporary style defines the wraparound kitchen, recently updated for modern functionality with a Westinghouse 900mm oven, Bosch dishwasher, and soft-close cabinetry.
The home’s impressive proportions continue through to its four freshly painted bedrooms, including the separately zoned main complete with walk-in robe and brand-new ensuite. On the lower level, the three remaining bedrooms enjoy access to a renovated bathroom, as well as a second living room, providing the adaptable space required by modern families.
The considered design extends out to a gently undulating yard, where a designated fire pit zone, a heated swimming pool with poolside pavilion, and a three-hole putting green create a holiday atmosphere at home.
An alfresco room with built-in barbecue kitchen and overhead heating provides the perfect spot for year-round entertaining, while established fruit trees and a kitchen garden add the finishing touches to this all-encompassing lifestyle offering.
Well maintained and enhanced with new carpets and window furnishings, the home’s every detail has been accounted for with zoned ducted heating, reverse cycle air-conditioning, surround sound, ample storage, oversized double garage with workshop, and 5kW of solar electricity.
In a quiet location prized for its proximity to Marketplace shops, the Surfside school and sporting precinct, and world-class beaches, this home presents an idyllic haven of sun, space, and lifestyle excellence.





















