Iconic Loewe Projects Build with a Poolside Family Focus
9B Charles Street, Brighton East
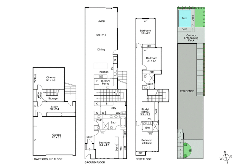
Rising to an elite standard of modern family living in the prized Gardenvale Primary precinct, this state-of-the-art home by Loewe Projects puts lifestyle, luxury and low-maintenance ease at the forefront of everyday living. Precision design over three sun-filled levels delivers a versatile footprint, culminating in a basement garage and a brilliant entertainer's domain that extends from expansive interiors to a north-facing poolside oasis.
The first floor's open-plan living and dining areas are your epicentre of leisure, with a premium kitchen placed in the front row of an unbeatable indoor-outdoor setting. With an island bench, walk-in pantry and a suite of quality appliances, including dual ovens, it hosts every occasion, opening to a decked terrace, heated pool and landscaped gardens that invite endless all-season enjoyment for all ages.
Upstairs plays host to a second living area with a built-in workstation for the kids, a central deluxe bathroom and three large robed bedrooms, including a second main suite with an ensuite. A ground-floor primary bedroom is a showcase of style and scale, boasting a large walk-in robe with a dressing table and a twin vanity ensuite with a freestanding bath. The lower level continues a forward-thinking design, with a theatre/media room, a bright home office with abundant storage and garden access, and a double remote garage with internal secure access.
Refined with wine storage, auto garden irrigation, an alarm system, solar power, double glazing, automated blinds (living room and primary bedroom), ducted vacuum, video intercom and reverse-cycle heating and cooling, everything is ticked for a well-lived life. Positioned for lifestyle excellence, this impressive home is just steps to the zoned Gardenvale Primary and a short walk to Hawthorn Road trams, Landcox Park, Bay Street and Martin Street dining/cafe precincts, and the train, with premier schools within easy proximity.























