Headline: Elegant City-Edge Living
56 -58 Charles St, East Melbourne
Amazing opportunity on the edge of the central business district, within an elite sporting location, offering city views and famous Melbourne Cricket Grounds from terrace , spilt level residence offers excellent accommodation.
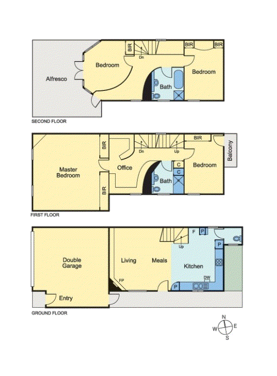
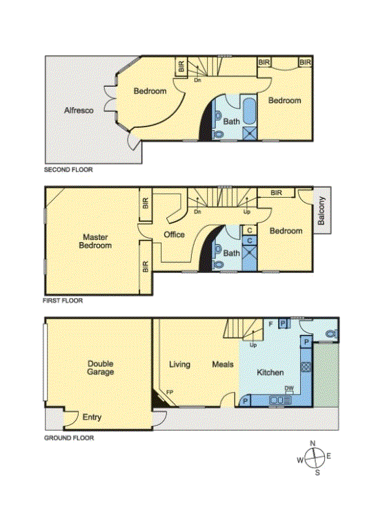
The property features an enormous master bedroom with built-in robes, good sized second and third bedrooms also with built-in robes, a fourth bedroom, and a separate study area. The spectacular alfresco terrace provides views of the CBD, Melbourne Park, and the MCG.
The well-appointed kitchen includes Miele appliances, gas, and a dishwasher, while the open-plan living and dining zones feature a gas fireplace. There are two immaculate bathrooms with a bath, plus a powder room off the kitchen, and internal laundry facilities.
The home is equipped with ducted heating and cooling throughout, a secure double garage (please ensure you check, height, width and length) sample storage, and a ducted vacuum system.
From this incredible location, you can walk to Rod Laver Arena, Fitzroy and Treasury Gardens, Federation Square, Spring Street, Emporium shopping, Bourke Street Mall, Queen Victoria markets, theatres, restaurants, and more.
Would you like to view this property?
Please see inspection details below and click on 'Request a time' or 'Email Agent'.
By registering, you will be instantly informed of any updates, changes or cancellations for your appointment .You must enter your details to book an inspection time. Please note there is no entry without an appointment.










