Private Courtyard
1/27 Wallace Avenue, Toorak
Sold
29/04/2025
Undisclosed
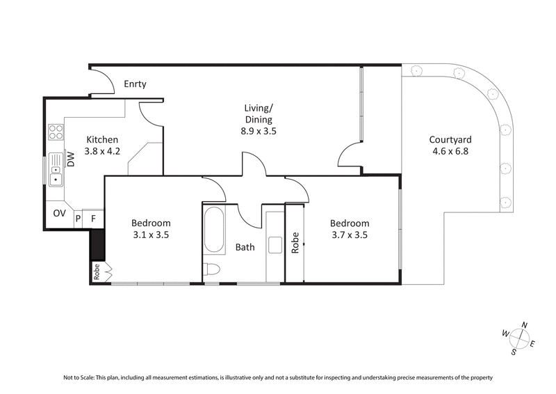
Who doesn't want a courtyard with their apartment? Secure leafy entrance to your foyer, complete with entrance hall, two double size bedrooms with BIR's , a central bathroom with shower over bath, laundry facilities and toilet. Kitchen with gas cook top, dishwasher and plenty of cupboards space. Lounge/Dining room with door to your own paved private courtyard . Add to this timber floors, hydronic heating and secure car space and you're set to enjoy all that this luxurious location has to offer. Agents in conjunction Geoff Nixon Real Estate - Paul Ross 0418 535 150
LOCATION
Toorak
1/27 Wallace Avenue, Toorak, VIC 3142











