Space & Serenity on Over 3-Acres
307-311 Rhinds Road, Wallington
Promoting a peaceful and private existence amidst a majestic 1.39Ha (3.42 acres approx.) bush block, this exceptional property offers superb family space and an effortless connection with nature, while offering brilliant connectivity mere moments from the Bellarine’s most revered lifestyle assets.
Tightly held and much adored as a warm and welcoming family home, the residence blends character-rich charm and comprehensive comfort throughout its single-level layout, with scope for the new custodians to add their own contemporary updates.
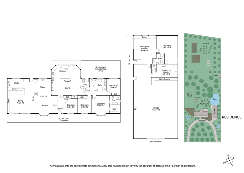
On entry, a large living room is beautifully appointed with an ambient wood burning fire as a cathedral ceiling and bay window lend elegant proportions to the space.
The impressive scale continues in the adjoining rumpus room inviting families to spread out in comfort throughout every age and stage, while the central open plan kitchen is designed for hosting with its twin wall ovens, induction and gas cooktops, and Bosch dishwasher.
Flexibly configured to cater to changing needs, three junior bedrooms boast built-in robes and are served by an updated bathroom with inviting clawfoot tub, while the main bedroom flaunts a walk-in robe and ensuite.
Beyond the freshly painted home, the property’s amenity is diverse and versatile. A 168sqm shed with overhead storage, wood burning fire, and bathroom offers ample space for hobbies or additional living needs, complemented by an additional woodshed, workshop, tennis court, on-site dam, extensive water storage, and beautifully treed grounds inviting little imaginations to run wild.
Further enhanced by reverse cycle air-conditioning to its three living zones, the property’s quiet location belies its fabulous proximity to Kingston Village shops and eateries, local wineries and restaurants, surf beaches, and schools, while also offering an easy commute to Geelong via the Bellarine Highway just 500m away.























