Freestanding Beauty in Central Location
58 Brickwood Street, Brighton
This charming freestanding period home combines light, space and comfort in a highly sought-after central location.
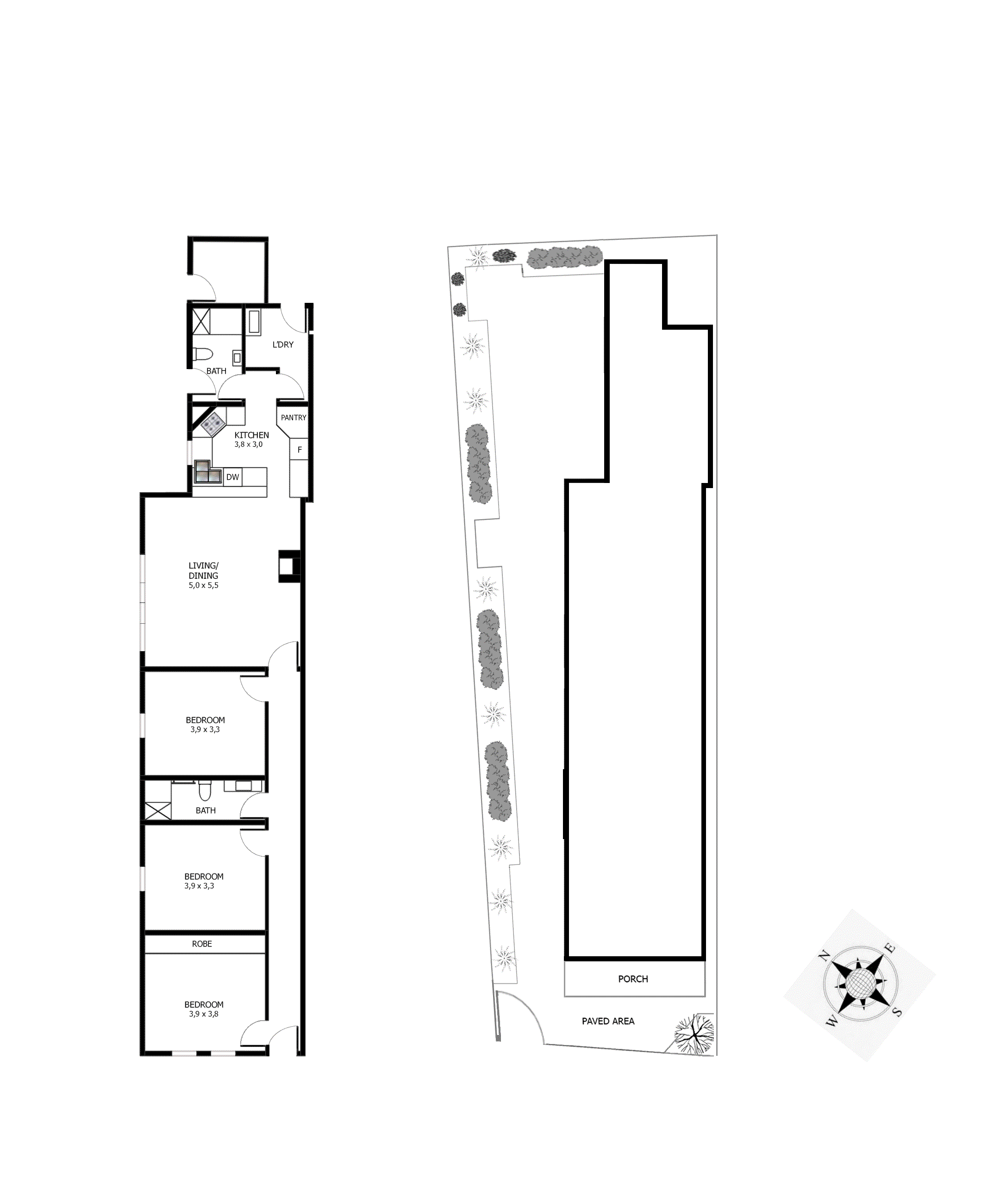
Designed to maximise its north-facing aspect, the home features an inviting entrance, three well-sized bedrooms, a bright and spacious living and dining area, an open-plan kitchen, two neat bathrooms, a separate study or home office, and a full laundry. The generous, low-maintenance garden provides the perfect setting for relaxing or entertaining, while classic period details, high ceilings, timber floors, and heating/cooling enhance the home’s appeal.
Perfectly positioned, you can stroll to Martin Street, Glen Huntly Road and Ormond Road’s shopping and dining precincts, Elsternwick Park, Elsternwick Primary and Elwood College, with public transport and the beach just moments away.













