House-Like Scale on a Prime Park-Side Corner
148A Sycamore Street, Caulfield South
On a sun-filled corner wrapped in lush greenery, this enticing Art Deco home captures the charm of its era, drawing in northern light and leafy aspects through house-sized proportions, moments from Princes Park. A fantastic prospect for those looking to downsize or begin in a coveted locale, it sits within easy walking distance of trams, Caulfield Primary School and the lively cafe and shopping scene of nearby Glenhuntly Road.
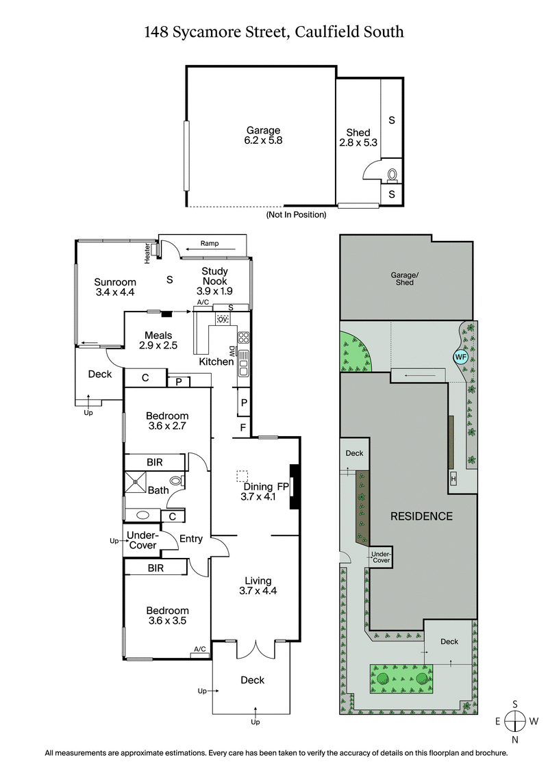
The original character has been carefully enhanced by modern updates, with formal living and dining rooms arranged to capture the northern light. An original fireplace, hardwood timber floors and French doors to a private landscaped courtyard create a warm, sunlit setting, while the scullery flows to a well-appointed kitchen and casual meals domain. At the rear, a versatile sunroom and relaxed garden terrace offer leafy privacy, with a pergola for year-round enjoyment and quiet nooks edged by established trees and a tranquil water feature.
Two spacious bedrooms with built-in robes sit privately along the hallway, accompanied by a central bathroom with mirrored cabinetry and a fresh aesthetic. Every detail works toward easy living, with ducted heating, split system cooling, inviting connections between indoors and out, secure garaging accessible via Jasmine Street, and an additional large workshop with roller door access. Beyond the gardens, the lifestyle is exceptional, with local dining at The Camden Hotel, Woolworths down the street, and the expanse of Princes Park extending your backyard within a quick walk.

















