Renovated Victorian In Most Vibrant Locale
10 Duke Street, Windsor
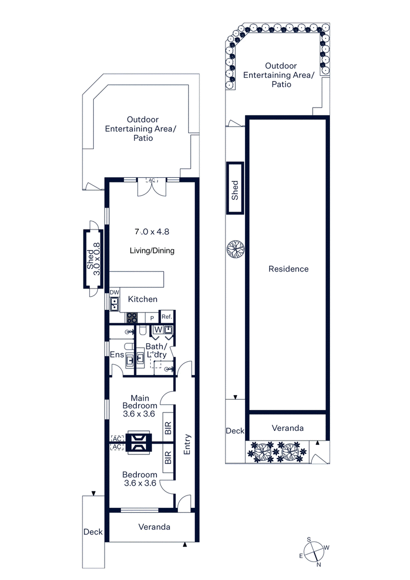
This gorgeous, private brick Victorian residence showcases many beautiful original features, such as ornate fire surrounds, iron lacework façade, tall ceilings, and ceiling rosettes. These period details accentuate the oversized proportions and blend seamlessly with a modern extension, functional open-plan kitchen, living, and dining area that overlooks a private rear courtyard through glass doors.
Located on a quiet back street off Chapel Street Windsor - recently ranked in the top 10 coolest suburbs in the world by Time Out magazine - you’ll enjoy a plethora of fine dining, vibrant bars, shops, cafés, and public transport all within a short walk.
Entering through a secure gate into a wide arched entrance hall, you’ll find two large bedrooms, including a master with ensuite, and a well-appointed open plan kitchen. Additional features include heating and cooling throughout, along with bespoke finishes.














