Architect-Designed Townhouse in Prime Preston Pocket
6 Kenwood Court, Preston
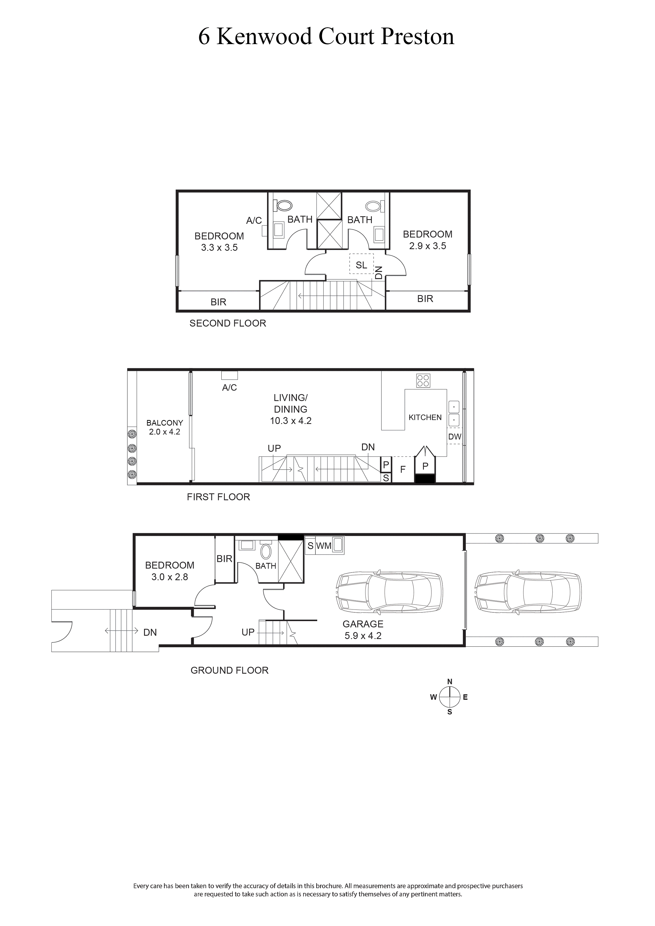
Thoughtfully designed by acclaimed Australian architecture firm Hayball, this three-bedroom, three-bathroom townhouse offers a flexible, light-filled floorplan ideal for young families or discerning buyers seeking comfort, quality and sustainability in Preston’s most coveted precinct.
Enjoy a large U-shaped kitchen with generous island bench and ample storage, an expansive master suite with ensuite, and an entertainer’s balcony that opens up from the light-filled living zone. A secure single lock-up garage plus an additional off-street car space ensures complete convenience.
Clever architectural elements—such as extensive glazing, open stairwells and skylights—fill the home with natural light and encourage cross-ventilation. Designed to be carbon neutral, the home features rooftop solar panels, water-saving systems, and zero reliance on fossil fuels, ensuring a low-cost, sustainable lifestyle for years to come.
Set in Preston Crossing, just north of Thornbury and a mere 8km from Melbourne’s CBD, this community-focused neighbourhood blends leading-edge design with green landscaping, shared spaces, and pedestrian-friendly pathways. Enjoy easy access to parklands, wetlands and bike trails along the rejuvenated skyrail corridor, as well as the bustling Preston Market and vibrant High Street café culture.
Transport is exceptional: the new Bell Train Station is only 200 metres away, providing express services to the CBD in under 20 minutes. Trams on both St Georges Road (No.11) and High Street (No.86) offer alternate routes into the city, while cyclists will love the St Georges Road trail that connects directly to the Capital City Trail at Merri Creek.
Set to achieve a 5 Star Green Star As-Built rating, these homes at Preston Crossing represent the future of responsible, design-led urban living—where community, convenience and sustainability meet.


















