Expansive Sunlit Residence In Vibrant Locale
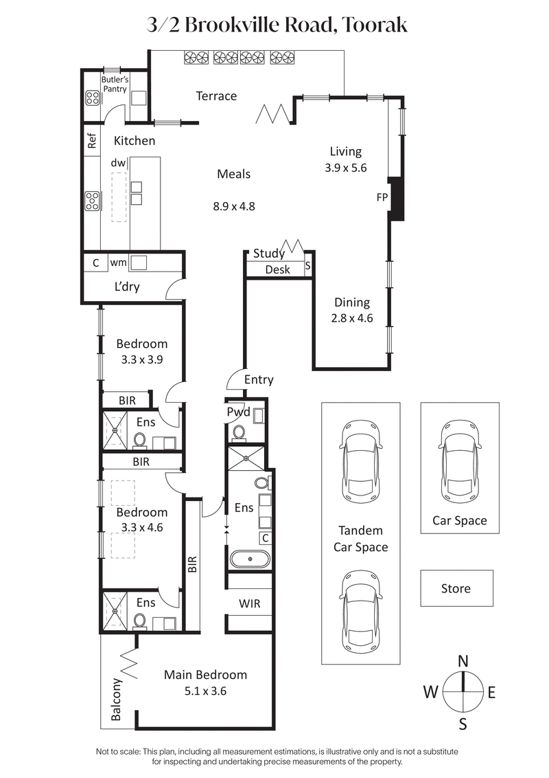
3/2 Brookville Road, Toorak
Elevated, sun-drenched, and totally private, this sensational north facing half-floor residence in the heart of Toorak offers seamless indoor/outdoor spaces for year-round entertainment, generous proportions, floor to ceiling glass and skylights capturing an abundance of natural light, impeccable finishes of oak herringbone flooring and marble benchtops throughout, and lift access in a boutique block of only 5 apartments. Enviously positioned within walking distance of Toorak and Hawksburn Villages shops and restaurants, Brookville Gardens, and transport.
Welcomed by a central foyer wide entrance hall, expansive open-plan living/dining room flowing to private north-facing entertainer’s terrace, formal lounge, study nook, beautifully finished marble kitchen/meals area and butler’s pantry with European appliances throughout. A separate wing presents oversized main bedroom with ensuite bathroom, walk-in, and built-in robes, and private west facing terrace, two further generous bedrooms with built-in robes and ensuites, powder room, laundry, storage room, and secure basement garaging for three cars.

















