Penthouse Luxury with Breathtaking Views
3/76A The Terrace, Ocean Grove
Entry to 2/76A The Terrace is via the rear laneway beside Ocean Grove Ice Cream. (4/82 the terrace)
Kindly note there is no front access from The Terrace.
Please don’t hesitate to call Brock 0427 855 157 for further information
Indulge in luxurious lock-and-leave living and prized heart of town positioning from this three-bedroom penthouse apartment, unfurling generous proportions, quality finishes, and mesmerising views across the Ocean Grove coastline to the Barwon Heads Bluff.
Situated atop the vibrancy of The Terrace, the home’s sophisticated, intelligent design maximises spacious entertaining and thoughtful accommodation, presenting a dream package for permanent residents and holidaymakers equally.
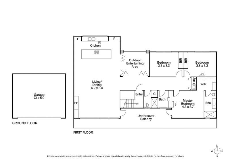
With secure keycode access, the single level layout opens to reveal a streamlined coastal aesthetic with high square-set ceilings and timber-look flooring that extends along a wide hallway to the open-plan living domain.
Defined by floor-to-ceiling windows that take in the spectacular aspect, the space provides an inviting space to unwind or entertain beside the soothing glow of a gas log fire, while residents are spoiled with a choice of alfresco zones, whether taking in sunset views across the water or hosting seaside soirees on the central terrace.
Bolstering the entertaining focus, the kitchen is resplendent in thick stone finishes where a mammoth island bench, built-in oven, electric cooktop, Westinghouse dishwasher, and stylish seafoam green cabinetry speak to the understated luxury.
The main bedroom with ensuite, walk-in robe, and alfresco access complements two further bedrooms, both with built-in robes, and an elegant main bathroom featuring full-height tiling, stone vanity top, oversized shower, and separate WC.
A suite of considered appointments includes double glazing, reverse cycle heating and cooling, split system air-conditioning, VJ wall panelling, European laundry, and a double lock-up garage with storage space.
In a location where residents are afforded a rare level of convenience and lifestyle, step outside to enjoy eateries, shopping, and daily amenities on your doorstep, while it’s also just a 400m stroll to the beach.




















