Exclusive Townhouse in a Quiet Cul-De-Sac
1/3 Wilks Street, Caulfield North
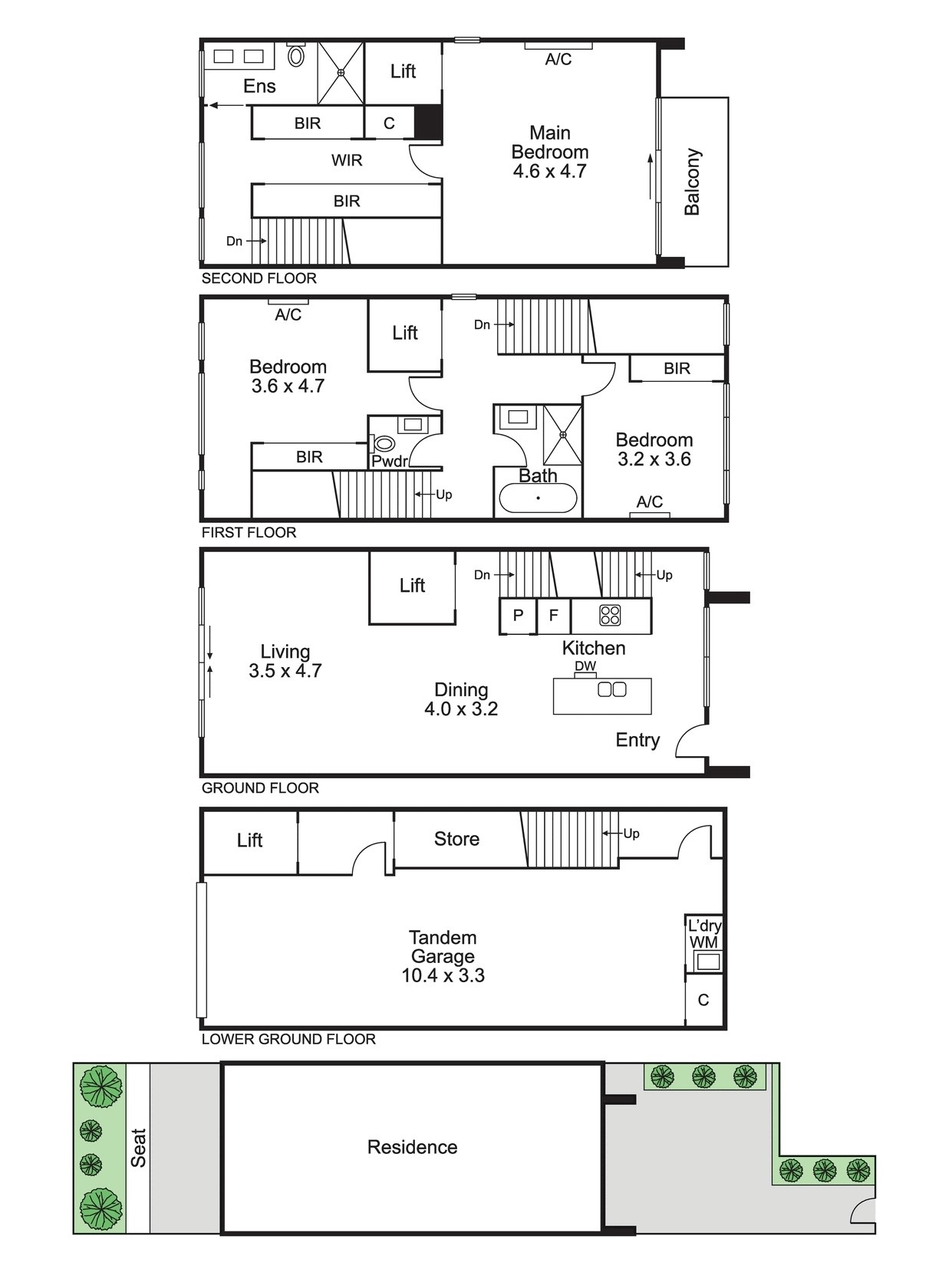
Nestled in an exclusive Caulfield North cul-de-sac, this architect-designed multi-level townhouse within the boutique Cantala development delivers a refined balance of contemporary elegance and low-maintenance luxury. Spanning four thoughtfully designed levels, the residence offers generous proportions and exceptional functionality, making it an ideal executive or family home.
Beyond the enclosed front courtyard with the convenience of private street entry, the ground level is introduced by floor-to-ceiling windows and immaculate timber flooring, revealing an expansive open-plan living and dining zone. This light-filled space is complemented by a gourmet stone kitchen appointed with quality appliances, including an integrated dishwasher and fridge/freezer, and flows seamlessly to a sun-drenched rear courtyard with built-in bench seating — an ideal setting for alfresco relaxation and entertaining.
The first level comprises two generously sized bedrooms with built-in robes, serviced by a stylish central bathroom featuring a freestanding bath, separate shower and toilet. The top level is dedicated to a private main bedroom retreat, complete with a luxurious fully tiled ensuite, a walkway of built-in robes and access to a private balcony.
The lower basement level provides a secure lock-up double garage along with the option for an electric vehicle charger to be installed as a renters request and European laundry facilities. Additional features include ducted heating and cooling, secure intercom entry, and access to resort-style resident amenities, including a communal swimming pool and BBQ area set within beautifully landscaped gardens.
Perfectly positioned within walking distance of Alma Village shops and cafés, transport options, Caulfield Park, well-regarded schools, and the vibrant High Street and Glenferrie Road shopping precincts, this exceptional residence offers a premium lifestyle opportunity in a tightly held location.
Please note, the lift within this property is not in working order.
Please note, this property is available for a 6 month lease only.
















